Valutazione immobiliare indipendente, accurata e gratuita
Appartamento in vendita a Trevignano in zona Falzè a 70.700 € (cod.656a6b70)
Caasa non ha sufficienti informazioni per commentare l'appartamento in vendita a Trevignano in zona Falzè - 656a6b70.
Analisi immobiliare
I dati in posseso di Caasa per quest'immobile sono insufficienti, inaffidabili o contraddittori per proporre un'analisi attendibile.
Mercato immobiliare a Trevignano
Per quanto riguarda più in generale il comune di Trevignano, sono presenti al momento circa cento annunci per
appartamenti in vendita (meno del 5% dell'intera provincia)
e il maggior numero di annunci per questa tipologia sono relativi alla zona di Signoressa, ma anche la zona di Falzè è molto attiva dal punto di vista immobiliare.
La richiesta media nella zona dove sorge l'appartamento (Falzè) è pari a
1.865 €/m² che la rende la più economica del comune .
Per quanto riguarda la dinamica dei prezzi, negli ultimi 6 mesi i prezzi medi in tutto il comune per appartamenti in vendita sono
in deciso aumento (+9,85%).
NOVITÀ Il risultato che vedi dipende dai dati che siamo riusciti ad estrarre dall'annuncio: ottieni una stima più accuranta di questo immobile, inserendo dati più precisi.
N.B. L'Opinione di Caasa® è un servizio sperimentale realizzato tramite tecniche di Intelligenza Artificiale, fornito senza alcuna garanzia di correttezza e completezza. Leggi il disclaimer o segnalaci un problema.
IMMAGINI
IN SINTESI
PROPOSTO DA:
Immobiliare Ghedin - GB RealEstate Srl
DESCRIZIONE
con giardino con termocondizionamento con cantina con riscaldamento autonomo con angolo cottura
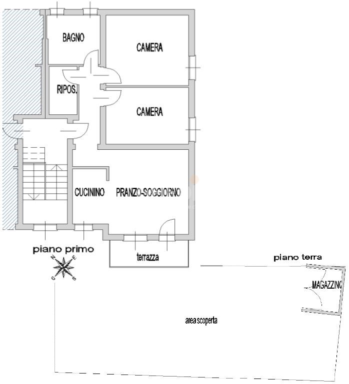
Nel centro di Falzè a 0.1 km dal Municipio, appartamento trilocale posto al primo piano con magazzino e orto, inserito in un contesto condominiale di un tranquillo quartiere residenziale nelle vicinanze di parcheggio pubblico e vicino a servizi primari. Composto da: ingresso-disimpegno, soggiorno-pranzo, cucinino, camera matrimoniale, camera doppia, ripostiglio e bagno

