Valutazione immobiliare indipendente, accurata e gratuita
Appartamento in vendita a Trevignano in zona Falzè a 70.700 € (cod.65558e16)
Caasa non ha sufficienti informazioni per commentare l'appartamento in vendita a Trevignano in zona Falzè - 65558e16.
Analisi immobiliare
I dati in posseso di Caasa per quest'immobile sono insufficienti, inaffidabili o contraddittori per proporre un'analisi attendibile.
Mercato immobiliare a Trevignano
Per quanto riguarda più in generale il comune di Trevignano, sono presenti al momento circa cento annunci per
appartamenti in vendita (meno del 5% dell'intera provincia)
e il maggior numero di annunci per questa tipologia sono relativi alla zona di Signoressa, mentre nella zona di Falzè è presente un numero significativamente inferiore di annunci.
La richiesta media nella zona dove sorge l'appartamento (Falzè) è pari a
1.865 €/m² che la rende la più economica del comune .
Possiamo inoltre considerare che in tutto il comune negli ultimi 6 mesi, i prezzi per appartamenti in vendita sono
in deciso aumento (+9,85%).
NOVITÀ Il risultato che vedi dipende dai dati che siamo riusciti ad estrarre dall'annuncio: ottieni una stima più accuranta di questo immobile, inserendo dati più precisi.
N.B. L'Opinione di Caasa® è un servizio sperimentale realizzato tramite tecniche di Intelligenza Artificiale, fornito senza alcuna garanzia di correttezza e completezza. Leggi il disclaimer o segnalaci un problema.
IMMAGINI
IN SINTESI
PROPOSTO DA:
asteaffari.com
DESCRIZIONE
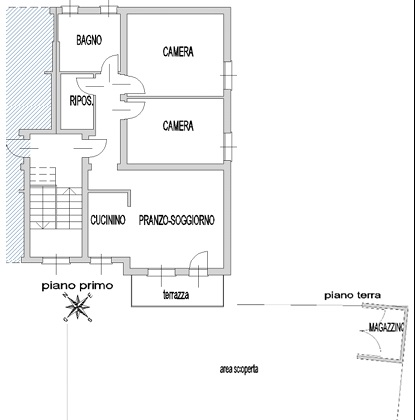
di recente costruzione con giardino in asta giudiziaria con cantina con termocondizionamento di recente costruzione con riscaldamento autonomo senza ascensore
A.A. Tv 26-9 Vendesi all'asta appartamento in data 11 marzo 2026 Nel centro di Falzè a 0.1 km dal Municipio, appartamento trilocale posto al primo piano con magazzino e orto, inserito in un contesto condominiale di un tranquillo quartiere residenzial […]
