Valutazione immobiliare indipendente, accurata e gratuita
Appartamento in vendita a Tarzo in zona Corbanese a 56.250 € (cod.64f55646)
Caasa non ha sufficienti informazioni per commentare l'appartamento in vendita a Tarzo in zona Corbanese - 64f55646.
Analisi immobiliare
I dati in posseso di Caasa per quest'immobile sono insufficienti, inaffidabili o contraddittori per proporre un'analisi attendibile.
Mercato immobiliare a Tarzo
Per quanto riguarda più in generale il comune di Tarzo, sono presenti al momento più di trenta annunci per
appartamenti in vendita (meno dell'1% dell'intera provincia)
e il maggior numero di annunci per questa tipologia sono relativi alla zona di Nogarolo, ma anche la zona di Corbanese è molto attiva dal punto di vista immobiliare.
Possiamo inoltre considerare che in tutto il comune negli ultimi 6 mesi, i prezzi per appartamenti in vendita sono
in forte aumento (+17,81%).
NOVITÀ Il risultato che vedi dipende dai dati che siamo riusciti ad estrarre dall'annuncio: ottieni una stima più accuranta di questo immobile, inserendo dati più precisi.
N.B. L'Opinione di Caasa® è un servizio sperimentale realizzato tramite tecniche di Intelligenza Artificiale, fornito senza alcuna garanzia di correttezza e completezza. Leggi il disclaimer o segnalaci un problema.
IMMAGINI
IN SINTESI
PROPOSTO DA:
STUDIO CANOVA immobili & crediti
DESCRIZIONE
con cantina con posto auto con garage con terrazza in asta giudiziaria
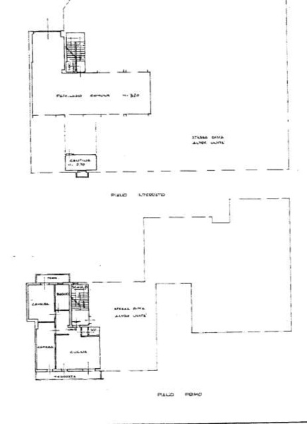
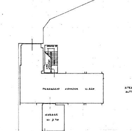
NUOVA PROPOSTA IMMOBILE DISPONIBILE Trattasi di un appartamento in via San Francesco nel comune di Tarzo TV. L'abitazione è composta da: - al piano interrato: garage e cantina; - al piano primo: ingresso soggiorno e cucina come unico ambiente, un disimpegno,due camere da letto doppie, un bagno finestrato con vasca e doccia, un wc cieco con antibagno e due terrazze. Questo immobile offre spazi funzionali e accoglienti per godere appieno di una vita confortevole e rilassante. Per te la possibilità di avere un preventivo per il mutuo a condizioni vantaggiose con i nostri partner. Ulteriori dettagli, foto degli interni, planimetrie e altre info, se disponibili, saranno consultabili previo appuntamento nella sede di CONEGLIANO con MATTEO che inoltre ti informerà sulle possibilità di aggiudicarti questo affare. L'immobile pubblicato al momento è sottoposto a procedura di vendita legale; Gescom srl è specializzata nella ricerca e pianificazione di investimenti immobiliari secondo innovative strategie di acquisto. Contattaci subito potrai valutare assieme a un nostro tecnico canali distinti di acquisto dell’immobile, procedura di vendita diretta senza ricorrere all’asta (d.lgs. 149/2022) e ancora stralcio immobiliare. Le informazioni sopra riportate non sostituiscono l'avviso pubblicato dal Tribunale competente ne’ l'integrale gestione da parte del delegato designato. Il testo e le specifiche indicate nella presente pagina sono generate automaticamente attraverso l'utilizzo di software e/o da A. I., Gescom srl invita a verificare le formazioni e i materiali multimediali sui canali ufficiali, declinando fin d'ora ogni responsabilità su eventuali errori o incongruenze. Gescom Italia srl leader negli stralci immobiliari e nella consulenza tecnico legale, non si occupa di attività di intermediazione imm. di cui alla legge 39/89. Cl. energ. da verificare. Le foto pubblicate nel presente annuncio sono indicative e non esaustive della tipologia, qualità, consistenza e indicazione geografica dell'immobile


