Valutazione immobiliare indipendente, accurata e gratuita
Ufficio in vendita a Silea a 138.150 € (cod.652f13a8)
Caasa non ha sufficienti informazioni per commentare l'ufficio in vendita a Silea - 652f13a8.
Analisi immobiliare
I dati in posseso di Caasa per quest'immobile sono insufficienti, inaffidabili o contraddittori per proporre un'analisi attendibile.
Mercato immobiliare a Silea
Per quanto riguarda più in generale il comune di Silea, sono presenti al momento più di venti annunci per
uffici in vendita (meno del 5% dell'intera provincia)
e il maggior numero di annunci per questa tipologia sono relativi alla zona di Lanzago.
NOVITÀ Il risultato che vedi dipende dai dati che siamo riusciti ad estrarre dall'annuncio: ottieni una stima più accuranta di questo immobile, inserendo dati più precisi.
N.B. L'Opinione di Caasa® è un servizio sperimentale realizzato tramite tecniche di Intelligenza Artificiale, fornito senza alcuna garanzia di correttezza e completezza. Leggi il disclaimer o segnalaci un problema.
IMMAGINI
IN SINTESI
PROPOSTO DA:
Case all'Asta
DESCRIZIONE
di recente costruzione di recente costruzione in asta giudiziaria
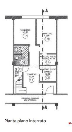
Unità immobiliare commerciale destinata ad ambulatorio, disposta su due piani. Il piano terra ha ingresso/attesa, ambulatorio medico, tre stanze e un bagno. Il piano interrato include tre magazzini, spogliatoio e un bagno. L'unità ha pianta rettangol […]
