Valutazione immobiliare indipendente, accurata e gratuita
Casa indipendente in vendita a San Vendemiano a 50.000 € (cod.6513e180)
Caasa non ha sufficienti informazioni per commentare la casa indipendente in vendita a San Vendemiano - 6513e180.
Analisi immobiliare
I dati in posseso di Caasa per quest'immobile sono insufficienti, inaffidabili o contraddittori per proporre un'analisi attendibile.
Mercato immobiliare a San Vendemiano
Per quanto riguarda più in generale il comune di San Vendemiano, sono presenti al momento più di trenta annunci per
case indipendenti in vendita (meno dell'1% dell'intera provincia)
e il maggior numero di annunci per questa tipologia sono relativi alla zona di Fossamerlo.
Per quanto riguarda la dinamica dei prezzi, negli ultimi 6 mesi i prezzi medi in tutto il comune per case indipendenti in vendita sono
in forte aumento (+14,04%).
NOVITÀ Il risultato che vedi dipende dai dati che siamo riusciti ad estrarre dall'annuncio: ottieni una stima più accuranta di questo immobile, inserendo dati più precisi.
N.B. L'Opinione di Caasa® è un servizio sperimentale realizzato tramite tecniche di Intelligenza Artificiale, fornito senza alcuna garanzia di correttezza e completezza. Leggi il disclaimer o segnalaci un problema.
IMMAGINI
IN SINTESI
PROPOSTO DA:
AGL BRESCIA
DESCRIZIONE
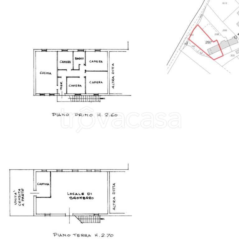
da ristrutturare con posto auto con garage con giardino con cantina da ristrutturare in asta giudiziaria
L’abitazione, porzione di un più ampio fabbricato rurale diviso in 3 unità nella prima metà degli anni Ottanta, occupa l'estremità ovest e si articola su due livelli: - PIANO TERRA: magazzino e cantina (circa mq. 110) e autorimessa (circa mq. 35); - […]
