Valutazione immobiliare indipendente, accurata e gratuita
Casa indipendente in vendita a Santa Lucia di Piave a 183.000 € (cod.65875263)
Caasa non ha sufficienti informazioni per commentare la casa indipendente a Santa Lucia di Piave - 65875263.
Analisi immobiliare
I dati in posseso di Caasa per quest'immobile sono insufficienti, inaffidabili o contraddittori per proporre un'analisi attendibile.
Mercato immobiliare a Santa Lucia di Piave
Per quanto riguarda più in generale il comune di Santa Lucia di Piave, sono presenti al momento più di cinquanta annunci per
case indipendenti in vendita (meno dell'1% dell'intera provincia)
e il maggior numero di annunci per questa tipologia sono relativi alla zona di Bocca di Strada.
La dinamica dei prezzi in tutto il comune mostra che negli ultimi 6 mesi, i prezzi per case indipendenti in vendita sono
in deciso calo (-8,17%).
NOVITÀ Il risultato che vedi dipende dai dati che siamo riusciti ad estrarre dall'annuncio: ottieni una stima più accuranta di questo immobile, inserendo dati più precisi.
N.B. L'Opinione di Caasa® è un servizio sperimentale realizzato tramite tecniche di Intelligenza Artificiale, fornito senza alcuna garanzia di correttezza e completezza. Leggi il disclaimer o segnalaci un problema.
IMMAGINI
IN SINTESI
PROPOSTO DA:
asteaffari.com
DESCRIZIONE
da ristrutturare con posto auto con giardino con garage con cantina con terrazza da ristrutturare con termocondizionamento in asta giudiziaria con riscaldamento autonomo con angolo cottura con balcone senza ascensore
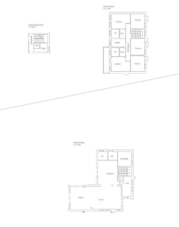
Rif. A.A.87-22 Vendita all'asta - abitazione unifamiliare con scoperto in data 9 giugno 2026 Descrizione: trattasi di villa unifamiliare disposto su 4 livelli, sito nel comune di Santa Lucia di Piave (TV), località Bolda, in Via Ungheresca n. 29, costituita da abitazione ai piani terra (portico, ingresso, bagno, ripostiglio-studio, cucina-pranzo, due zone soggiorno, vano scale, lavanderia-c.t., loggia), primo (vano scale, disimpegno, bagno, n.5 camere due delle quali con bagno e guardaroba riservato, una terrazza e n.3 balconi), secondo (vano scale, unico ambiente adibito a cucina-pranzo, vano soggiorno, bagno, camera con bagno e due guardaroba, ripostiglio) e interrato (cantina, disimpegno, vano sottoscala, deposito-sala biliardo, ripostiglio, bagno, magazzino e garage), con annessa area scoperta esclusiva di mq. 1.431 catastali. Pertinenziali: garage al piano interrato; ripostiglio e due depositi al piano interrato; loggetta e portico al piano terra. Appezzamento di terreno agricolo di mq. 6.362. L'immobile viene venduto tramite asta giudiziaria, ed il prezzo indicato si riferisce al prezzo minimo accettato per la partecipazione all'asta . Aste-Affari fornisce un servizio di assistenza e consulenza tecnica , legale, fiscale e finanziaria su acquisti all'asta e affari immobiliari , al fine di rendere più facile e sicuro l'acquisto di un immobile proveniente dal mercato giudiziario oppure da occasioni presenti sul mercato immobiliare . Analisi di fattibilità , tecnica, burocratica, finanziaria , legale , esame problematiche e vincoli , conteggio costi accessori ed occulti, assistenza in tutte le fasi della procedura fino alla consegna delle chiavi dell'immobile . L'acquisto può essere finanziato tramite mutuo , e , ove possibile , anche in pre-asta tramite procedura di saldo-stralcio . Soluzioni personalizzate per i debitori . Prezzo minimo base asta : euro 183.000,00 Per info aggiuntive , prenotazione visione, consulenza ed assistenza Studio di Consulenza : 'aste-affari.com' Info : 04221781118 - 04221780[…]




