Valutazione immobiliare indipendente, accurata e gratuita
L'Opinione di Caasa® per l'appartamento in vendita a Santa Lucia di Piave a 340.000 € (cod.657e2ef2)
Secondo Caasa, per l'appartamento in vendita a Santa Lucia di Piave, la richiesta di 340.000 € è significativamente svantaggiosa rispetto agli annunci simili.
Analisi immobiliare
L'appartamento, situato nella zona OMI E1, è proposto in vendita a
340.000 € per una
superficie commerciale di
115 m² e quindi ad un prezzo per metro quadrato pari a
2956 €/m²
.
Questo prezzo
è meno vantaggioso di quello stimato da Caasa per immobili in vendita simili per tipologia, caratteristiche, classe energetica e localizzati nella stessa zona OMI, che è compreso tra
2.553 €/m² e
2.735 €/m².
La conoscenza con buona approssimazione della localizzazione dell'immobile ha consentito di utilizzare come raffronto i dati medi elaborati esattamente nella zona OMI di appertenenza (LUNGO VIA BOLDA, VIA DISTRETTUALE, VIA VANIZZA). Inoltre, Caasa ha potuto affinare la stima anche con la conoscenza della classe energetica (A+) oltre che dello stato dell'immobile (di nuova costruzione) e di alcune caratteristiche significative come il garage. In virtù di queste considerazioni è possibile considerare un intervallo di valori accettabili per l'offerta abbastanza limitato.
Mercato immobiliare a Santa Lucia di Piave
Per quanto riguarda più in generale il comune di Santa Lucia di Piave, sono presenti al momento più di trenta annunci per
appartamenti in vendita (meno dell'1% dell'intera provincia)
e il maggior numero di annunci per questa tipologia sono relativi alla zona di Bocca di Strada.
Possiamo inoltre considerare che in tutto il comune negli ultimi 6 mesi, i prezzi per appartamenti in vendita sono
in sostanziale aumento (+7,42%).
NOVITÀ Il risultato che vedi dipende dai dati che siamo riusciti ad estrarre dall'annuncio: ottieni una stima più accuranta di questo immobile, inserendo dati più precisi.
N.B. L'Opinione di Caasa® è un servizio sperimentale realizzato tramite tecniche di Intelligenza Artificiale, fornito senza alcuna garanzia di correttezza e completezza. Leggi il disclaimer o segnalaci un problema.
IMMAGINI
IN SINTESI
PROPOSTO DA:
IMMOBILIARE LEONARDO S.r.l
DESCRIZIONE
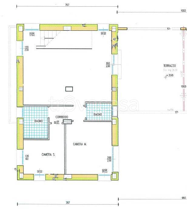
di nuova costruzione con posto auto con garage con terrazza con termocondizionamento di nuova costruzione
SANTA LUCIA DI PIAVE RIF B/22-BB Di prossima consegna, appartamento ( RIF A) situato al primo e ultimo piano di circa 90 mq PIU' una comoda terrazza di circa 26 mq , dove poter collocare una pompeiana e attrezzarla con una cucina da esterno, in quanto la parte sarà provvista di corrente acqua e scarichi . La proprietà include un posto auto scoperto e un garage chiuso di 25 mq. L’immobile è composto da due spaziose camere da letto, doppi servizi entrambi finestrati, ingresso, soggiorno e cucina dalla forma rettangolare, ideale per una disposizione pratica degli arredi. Collocato in una piccola palazzina di sole 4 unità, l’appartamento è in 4 e dispone di isolamento a cappotto, pompa di calore con riscaldamento a pavimento, impianto fotovoltaico da 4.5 kW con batterie di accumulo. lE IMMAGINI ALLEGATE SONO PURAMENTE DIMOSTRATIVE. SIAMO COMUNQUE IN GRADO DI PROGETTARE E FORNIRE DEGLI ARREDI CON UN CHIAVI IN MANO . Rifiniture di livello medio-alto. DANIELA@IMMLEONARDO.COM

