Valutazione immobiliare indipendente, accurata e gratuita
Locale di sgombero in vendita a San Biagio di Callalta a 285.000 € (cod.6584c252)
Caasa non ha sufficienti informazioni per commentare il locale di sgombero a San Biagio di Callalta - 6584c252.
Analisi immobiliare
I dati in posseso di Caasa per quest'immobile sono insufficienti, inaffidabili o contraddittori per proporre un'analisi attendibile.
Mercato immobiliare a San Biagio di Callalta
Per quanto riguarda più in generale il comune di San Biagio di Callalta, sono presenti al momento più di trenta annunci per
locali di sgombero in vendita (meno del 5% dell'intera provincia) .
Vedi altre informazioni direttamente su
Mercato-Immobiliare.info
NOVITÀ Il risultato che vedi dipende dai dati che siamo riusciti ad estrarre dall'annuncio: ottieni una stima più accuranta di questo immobile, inserendo dati più precisi.
N.B. L'Opinione di Caasa® è un servizio sperimentale realizzato tramite tecniche di Intelligenza Artificiale, fornito senza alcuna garanzia di correttezza e completezza. Leggi il disclaimer o segnalaci un problema.
IMMAGINI
IN SINTESI
PROPOSTO DA:
Case all'Asta
DESCRIZIONE
di recente costruzione con terrazza con giardino di recente costruzione in asta giudiziaria
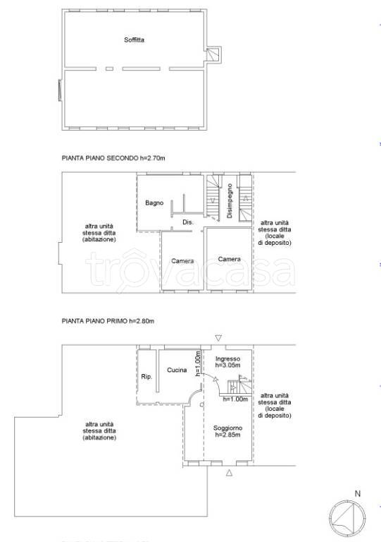
Casa indipendente con due abitazioni e area di 3.279 mq Unico lotto composto da due abitazioni, locali deposito e area esterna. Prima abitazione con cucina, soggiorno, due camere, bagno, lavanderia e portico. Seconda abitazione con cucina, soggiorno, […]
