Valutazione immobiliare indipendente, accurata e gratuita
L'Opinione di Caasa® per l'appartamento a San Biagio di Callalta in zona Olmi-San Floriano a 325.000 € (cod.6563c618)
Secondo Caasa, per l'appartamento in vendita in zona Olmi-San Floriano, la richiesta di 325.000 € è equilibrata rispetto agli annunci simili.
Analisi immobiliare
L'appartamento è proposto in vendita a
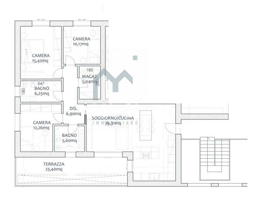
325.000 € per una
superficie commerciale di
120 m² e quindi ad un prezzo per metro quadrato pari a
2708 €/m²
.
Questo valore
è molto vicino a quello stimato da Caasa per immobili in vendita simili per tipologia e caratteristiche, presenti nella stessa zona, che è compreso tra
2.542 €/m² e
2.701 €/m².
Considerata la posizione dell'appartamento sono stati utilizzati come raffronto i valori medi nelle zone limitrofe e soprattutto le richieste in vendita per appartamenti in zona Olmi-San Floriano (da 2.000 €/m² a 2.725 €/m²). Caasa non è stata in grado di determinare la classe energetica, ma ad affinare la stima ha contribuito però anche la presenza di alcune caratteristiche significative come il garage. Per queste ragioni l'intervallo dei valori possibili per l'offerta è relativamente ampio.
Mercato immobiliare a San Biagio di Callalta
Per quanto riguarda più in generale il comune di San Biagio di Callalta, sono presenti al momento più di 150 annunci per
appartamenti in vendita (meno del 5% dell'intera provincia)
e il maggior numero di annunci per questa tipologia sono relativi alla zona di Cavriè, ma anche la zona di Olmi-San Floriano è molto attiva dal punto di vista immobiliare.
Per quanto riguarda la richiesta media in zona Olmi-San Floriano, dove sorge l'appartamento, essa è pari a circa
2.430 €/m² per appartamenti in vendita.
Per quanto riguarda la dinamica dei prezzi, negli ultimi 6 mesi i prezzi medi in tutto il comune per appartamenti in vendita sono
in deciso aumento (+8,13%).
NOVITÀ Il risultato che vedi dipende dai dati che siamo riusciti ad estrarre dall'annuncio: ottieni una stima più accuranta di questo immobile, inserendo dati più precisi.
N.B. L'Opinione di Caasa® è un servizio sperimentale realizzato tramite tecniche di Intelligenza Artificiale, fornito senza alcuna garanzia di correttezza e completezza. Leggi il disclaimer o segnalaci un problema.
IMMAGINI
IN SINTESI
PROPOSTO DA:
PADOVA INTERMEDIAZIONI SRL
DESCRIZIONE
con posto auto con garage con terrazza con giardino con termocondizionamento con riscaldamento autonomo con angolo cottura
A Olmi di San Biagio di Callalta in vendita questo spazioso appartamento all'interno di una elegante palazzina di poche unit abitative. L'immobile con una splendida vista sul verde circostante, composto da un ampio soggiorno con angolo cottura dal quale si accede al terrazzo abitabile, sicuramente il luogo ideale per trascorrere piacevoli momenti in compagnia. Segue il disimpegno che conduce alla zona notte con 3 camere da letto, due bagni e un comodo magazzino Completa la propriet il locale garage e 2 posti auto. Particolare attenzione stata posta ai materiali utilizzati e alla scelta delle finiture che rendono le residenza molto accogliente. E' presente l'impianto fotovoltaico di 6 Kwp per la singola unit; il riscaldamento a pavimento, presente la ventilazione meccanica e la predisposizione per il clima e l'allarme. La posizione dell'appartamento strategica, vicina a tutti i servizi essenziali e ben collegata con il centro del paese e le principali vie di comunicazione. L'immobile rappresenta una soluzione ideale per chi desidera vivere in un ambiente confortevole e moderno, immerso nel verde e con tutte le comodit necessarie per una vita serena. Maggiori informazioni in agenzia. Si precisa che l'indirizzo presente non identifica l'esatta ubicazione dell'immobile questo al fine di tutelare la privacy e la riservatezza del venditore. - SC9601335


