Valutazione immobiliare indipendente, accurata e gratuita
L'Opinione di Caasa® per l'appartamento in vendita a Preganziol a 399.000 € (cod.654caad2)
Secondo Caasa, per l'appartamento in vendita a Preganziol, la richiesta di 399.000 € è leggermente svantaggiosa rispetto agli annunci simili.
Analisi immobiliare
L'appartamento, situato nella zona OMI B2, è proposto in vendita (da Roveda Immobiliare snc) a
399.000 € per una
superficie commerciale di
138 m² e quindi ad un prezzo per metro quadrato pari a
2891 €/m²
.
Questo prezzo
è di poco superiore a quello stimato da Caasa per immobili in vendita simili per tipologia e caratteristiche e localizzati nella stessa zona OMI, che è compreso tra
2.617 €/m² e
2.827 €/m².
Grazie alla conoscenza con buona approssimazione della localizzazione dell'immobile, è stato possibile utilizzare come raffronto i dati medi elaborati esattamente nella zona OMI di appertenenza (ZONA CENTRALE E FRAZIONE DI LE GRAZIE). Anche se Caasa non è riuscita a determinare la classe energetica, ad affinare la stima hanno contribuito anche lo stato dell'immobile (di nuova costruzione) e la presenza di alcune caratteristiche significative come la presenza dell'ascensore o il garage. Per queste ragioni l'intervallo dei valori accettabili per l'offerta è relativamente limitato.
Mercato immobiliare a Preganziol
Per quanto riguarda più in generale la città di Preganziol, sono presenti al momento più di 150 annunci per
appartamenti in vendita (meno del 5% dell'intera provincia)
e il maggior numero di annunci per questa tipologia sono relativi alla zona di San Trovaso.
Possiamo inoltre considerare che in tutta la città negli ultimi 6 mesi, i prezzi per appartamenti in vendita sono
sostanzialmente stabili (-0,94%).
NOVITÀ Il risultato che vedi dipende dai dati che siamo riusciti ad estrarre dall'annuncio: ottieni una stima più accuranta di questo immobile, inserendo dati più precisi.
N.B. L'Opinione di Caasa® è un servizio sperimentale realizzato tramite tecniche di Intelligenza Artificiale, fornito senza alcuna garanzia di correttezza e completezza. Leggi il disclaimer o segnalaci un problema.
IMMAGINI
IN SINTESI
DESCRIZIONE
di nuova costruzione con posto auto con garage con terrazza con termocondizionamento di nuova costruzione con riscaldamento autonomo con ascensore con angolo cottura
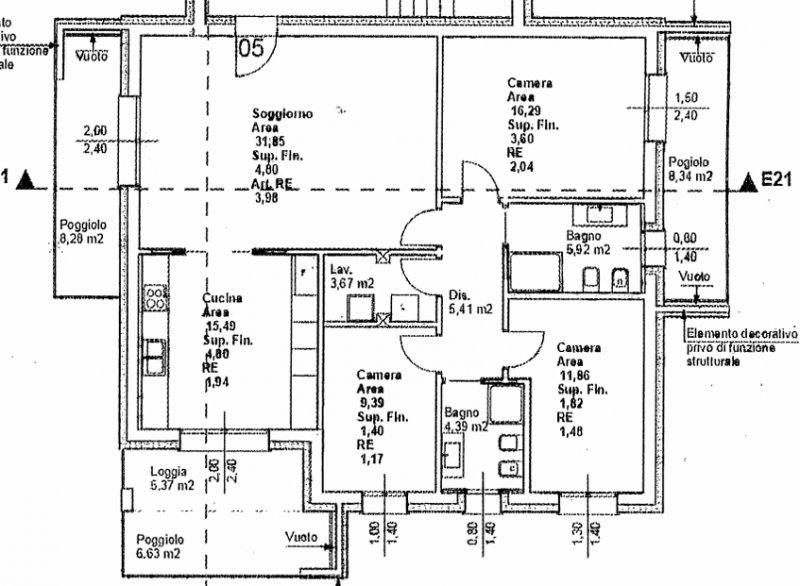
PREGANZIOL RIFERIMENTO: PR11 L'agenzia Roveda Immobiliare ha il piacere di presentarvi, in una via residenziale situata in zona centrale di Preganziol, questa nuova costruzione di sole sette unità abitative con ascensore distribuite su tre piani. La posizione è particolarmente strategica, con tutti i principali servizi raggiungibili comodamente a piedi e scuole nelle immediate vicinanze, rendendo l'immobile ideale per famiglie e per chi desidera vivere il paese senza rinunciare alla tranquillità. L'edificio è progettato per garantire elevato comfort abitativo ed efficienza energetica, raggiungendo la classe A4. Le abitazioni dispongono di impianti di ultima generazione come riscaldamento a pavimento, pompa di calore, climatizzazione canalizzata, VMC e fotovoltaico da 3 kW, l'isolamento è assicurato da cappotto esterno da 17 cm e serramenti in legno con triplo vetro. Completano le dotazioni tapparelle elettriche e predisposizione allarme. L' immobile sito al piano attico è così distribuito: ingresso su ampia zona giorno openspace di circa 48 mq., un ambiente moderno e luminoso valorizzato da ampie vetrate che lasciano entrare la luce naturale e accompagnano verso il terrazzo abitabile, ideale come estensione della zona living nelle stagioni più miti. Un funzionale disimpegno, con spazio dedicato ad armadiatura a muro, conduce alla zona notte dove trovano spazio una camera matrimoniale di 16,29 mq, una camera doppia di 11,86 mq, una camera singola e due bagni finestrati, curati nei dettagli e ben distribuiti. Completa la proprietà un garage di 18 mq, che aggiunge praticità e un posto auto all'interno della proprietà. Consegna: 2/3 mesi







