Valutazione immobiliare indipendente, accurata e gratuita
L'Opinione di Caasa® per l'appartamento in vendita a Preganziol a 365.000 € (cod.65117419)
Secondo Caasa, per l'appartamento in vendita a Preganziol, la richiesta di 365.000 € è equilibrata rispetto agli annunci simili.
Analisi immobiliare
L'appartamento, situato nella zona OMI B2, è proposto in vendita a
365.000 € per una
superficie commerciale di
105 m² e quindi ad un prezzo per metro quadrato pari a
3476 €/m²
.
Tale prezzo
è perfettamente allineato a quello stimato da Caasa per immobili in vendita simili per tipologia, caratteristiche, classe energetica e localizzati nella stessa zona OMI, che è compreso tra
3.306 €/m² e
3.509 €/m².
La conoscenza con buona approssimazione della localizzazione dell'immobile ha consentito di utilizzare come raffronto i dati medi elaborati esattamente nella zona OMI di appertenenza (ZONA CENTRALE E FRAZIONE DI LE GRAZIE). Inoltre, Caasa ha potuto affinare la stima anche con la conoscenza della classe energetica (A+) oltre che di alcune caratteristiche significative come il garage. Per queste considerazioni i valori accettabili per l'offerta costituiscono un intervallo abbastanza limitato.
Mercato immobiliare a Preganziol
Per quanto riguarda più in generale la città di Preganziol, sono presenti al momento più di 150 annunci per
appartamenti in vendita (meno del 5% dell'intera provincia)
e il maggior numero di annunci per questa tipologia sono relativi alla zona di Frescada.
Relativamente alla dinamica dei prezzi, possiamo dire che negli ultimi 6 mesi i prezzi medi in tutta la città per appartamenti in vendita sono
in forte aumento (+15,08%).
NOVITÀ Il risultato che vedi dipende dai dati che siamo riusciti ad estrarre dall'annuncio: ottieni una stima più accuranta di questo immobile, inserendo dati più precisi.
N.B. L'Opinione di Caasa® è un servizio sperimentale realizzato tramite tecniche di Intelligenza Artificiale, fornito senza alcuna garanzia di correttezza e completezza. Leggi il disclaimer o segnalaci un problema.
IMMAGINI
IN SINTESI
DESCRIZIONE
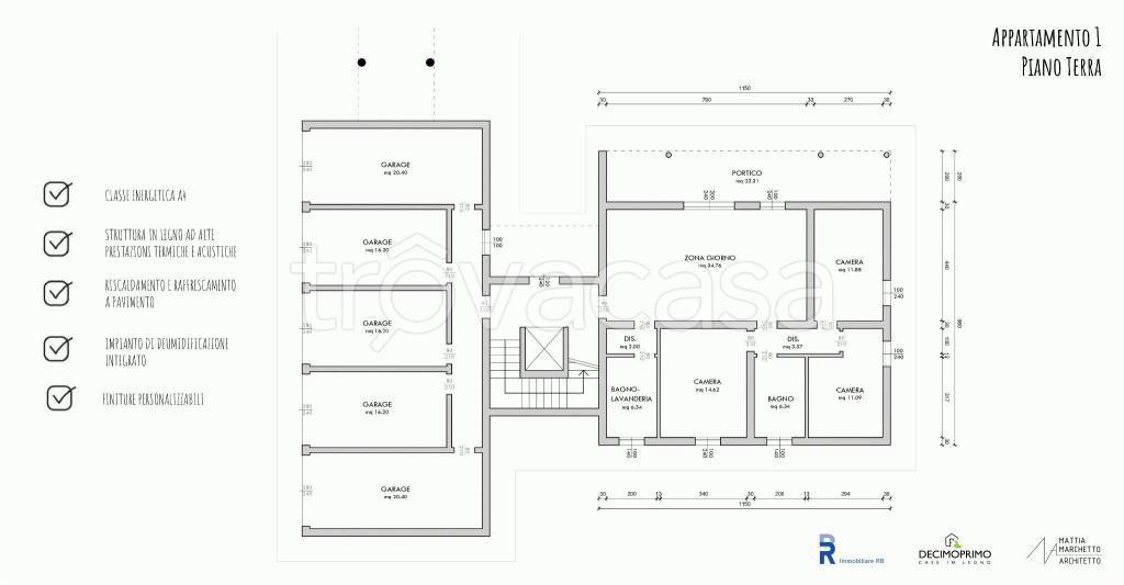
con posto auto con garage
Nuovi appartamenti in bioedilizia nel cuore di Preganziol Comfort, sostenibilità e qualità abitativa firmata Decimo Primo In centro a Preganziol nasce una nuova residenza firmata Decimo Primo, azienda leader nel settore della bioedilizia. Una realtà con oltre 15 anni di esperienza, che costruisce abitazioni ad alta efficienza energetica, pensate per il benessere delle persone e il rispetto dell’ambiente


