Valutazione immobiliare indipendente, accurata e gratuita
L'Opinione di Caasa® per l'appartamento in vendita a Pieve del Grappa a 282.000 € (cod.6542dd7d)
Secondo Caasa, per l'appartamento in vendita a Pieve del Grappa, la richiesta di 282.000 € è leggermente vantaggiosa rispetto agli annunci simili.
Analisi immobiliare
L'appartamento, situato nella zona OMI R1, è proposto in vendita a
282.000 € per una
superficie commerciale di
150 m² e quindi ad un prezzo per metro quadrato pari a
1880 €/m²
.
Tale prezzo
è un po' più basso di quello stimato da Caasa per immobili in vendita simili per tipologia, caratteristiche, classe energetica e zona, che è compreso tra
1.939 €/m² e
2.099 €/m².
Presa in considerazione la posizione dell'appartamento si sono utilizzati in raffronto i valori medi nelle zone limitrofe . Ad affinare la stima ha contribuito anche la classe energetica (A) oltre alla conoscenza dello stato dell'immobile (di nuova costruzione) e di alcune caratteristiche significative come il garage. Per i motivi esposti i valori accettabili per l'offerta costituiscono un intervallo relativamente limitato.
Mercato immobiliare a Pieve del Grappa
Per quanto riguarda più in generale il comune di Pieve del Grappa, sono presenti al momento più di cinquanta annunci per
appartamenti in vendita (meno dell'1% dell'intera provincia)
e il maggior numero di annunci per questa tipologia sono relativi alla zona di Crespano del Grappa.
Relativamente alla dinamica dei prezzi, possiamo dire che negli ultimi 6 mesi i prezzi medi in tutto il comune per appartamenti in vendita sono
in deciso aumento (+7,60%).
NOVITÀ Il risultato che vedi dipende dai dati che siamo riusciti ad estrarre dall'annuncio: ottieni una stima più accuranta di questo immobile, inserendo dati più precisi.
N.B. L'Opinione di Caasa® è un servizio sperimentale realizzato tramite tecniche di Intelligenza Artificiale, fornito senza alcuna garanzia di correttezza e completezza. Leggi il disclaimer o segnalaci un problema.
IMMAGINI
IN SINTESI
PROPOSTO DA:
BATTOCCHIO GIUSEPPE
DESCRIZIONE
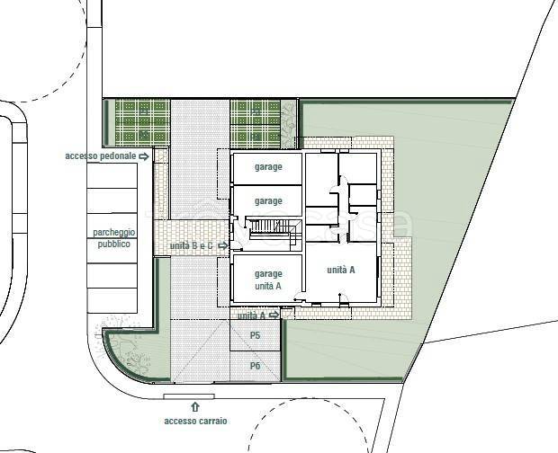
di nuova costruzione con giardino con posto auto con garage con terrazza di nuova costruzione di recente costruzione
BATTOCCHIO GIUSEPPE PROPONE NUOVO PROGETTO DI SVILUPPO AI PIEDI DEL GRAPPA Interessante opzione in graziosa palazzina accesso da ovest Varie soluzioni TRICAMERE A PIEVE DEL GRAPPA Crespano. Le 3 Unità affiancate sono in corso di costruzione e sorgeranno su splendida lottizzazione completamente rivolta a sud e con vista aperta e luminosa verso la pianura e a nord sul Monte Grappa. Al piano primo 2 APPARTAMENTI CON TERRAZZO RIVOLTO A OVEST Luminosa zona giorno e 2 bagni con tre camere da letto . Garage incluso nel prezzo e posto auto supplementare con sovrapprezzo. Al Piano Terra APPARTAMENTO CON SPLENDIDO GIARDINO : ingresso con ampia zona soggiorno e spaziosa cucina a vista, 2 BagnI. Splendida e spaziosa zona notte con 3 camere da letto, bagno con doccia. Giardino privato con vialetto. Lontano da fonti di rumore ma allo stesso tempo comoda al paese. Ampio garage e eventuale posto auto . AMPI SPAZI DI MANOVRA E GRAZIOSO PARCO DI LOTTIZZAZIONE CON STRADA CHIUSA . OTTIMO PER FAMIGLIE E VISTA TRANQUILLA FUORI DA TRAFFICO CITTADINO . VISITE SU PRENOTAZIONE E SOLO ACCOMPAGNATI DALL' INCARICATO ALLA VENDITA BATTOCCHIO GIUSEPPE 3482842814. Per ogni tua esigenze immobiliare chiama Battocchio dott. Giuseppe : Laurea in Economia e Commercio con indirizzo giuridico presso l’Università Cà Foscari di Venezia. Studi tecnico commerciali Ex imprenditore e successivamente Manager all’estero per conto di società italiane di diritto estero. Ha sviluppato una consolidata esperienza da project Manager e advisor free lance. Dal 2011 ha ricoperto diversi ruoli come figura fiduciaria e consulente di imprenditori nel ramo immobiliare. Nel 2012 ha conseguito innumerevoli esperienze nella gestione ordinaria e straordinaria di patrimoni immobiliari conseguendo l’iscrizione al ruolo Agenti in Affari aziendali e immobiliari secondo la nuova normativa D.Lgs. 26 marzo 2010 n. 59 e D.M. 2011. Esperto in tecnica Bancaria e capace negoziatore, ha sviluppato una sempre più approfondita capacità di consulenza immobiliare sottoscrivendo via vi[…]

