Valutazione immobiliare indipendente, accurata e gratuita
L'Opinione di Caasa® per la casa indipendente in vendita a Pieve del Grappa a 345.000 € (cod.63811754)
Secondo Caasa, per la casa indipendente in vendita a Pieve del Grappa, la richiesta di 345.000 € è leggermente vantaggiosa rispetto agli annunci simili.
Analisi immobiliare
La casa indipendente, situata nella zona OMI R1, è proposta in vendita a
345.000 € per una
superficie commerciale di
250 m² e quindi ad un prezzo per metro quadrato pari a
1380 €/m²
.
Questo valore
è di poco inferiore a quello stimato da Caasa per immobili in vendita simili per tipologia e caratteristiche, presenti nella stessa zona, che è compreso tra
1.420 €/m² e
1.590 €/m².
Considerata la posizione della casa indipendente sono stati utilizzati come raffronto i valori medi nelle zone limitrofe . Caasa non è stata in grado di determinare la classe energetica, ma ad affinare la stima hanno contribuito però anche lo stato dell'immobile (di nuova costruzione) e la presenza di alcune caratteristiche significative come il garage. In virtù di queste considerazioni l'intervallo dei valori possibili per l'offerta è relativamente ampio.
Mercato immobiliare a Pieve del Grappa
Per quanto riguarda più in generale il comune di Pieve del Grappa, sono presenti al momento più di cinquanta annunci per
case indipendenti in vendita (meno dell'1% dell'intera provincia)
e il maggior numero di annunci per questa tipologia sono relativi alla zona di Paderno del Grappa.
Per quanto riguarda la dinamica dei prezzi, negli ultimi 6 mesi i prezzi medi in tutto il comune per case indipendenti in vendita sono
in debole diminuzione (-2,20%).
NOVITÀ Il risultato che vedi dipende dai dati che siamo riusciti ad estrarre dall'annuncio: ottieni una stima più accuranta di questo immobile, inserendo dati più precisi.
N.B. L'Opinione di Caasa® è un servizio sperimentale realizzato tramite tecniche di Intelligenza Artificiale, fornito senza alcuna garanzia di correttezza e completezza. Leggi il disclaimer o segnalaci un problema.
IMMAGINI
IN SINTESI
PROPOSTO DA:
BATTOCCHIO GIUSEPPE
DESCRIZIONE
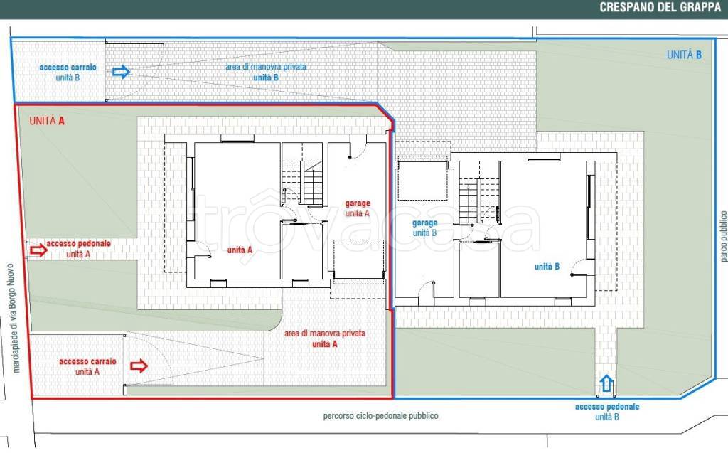
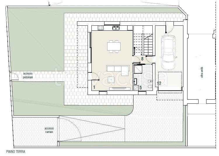
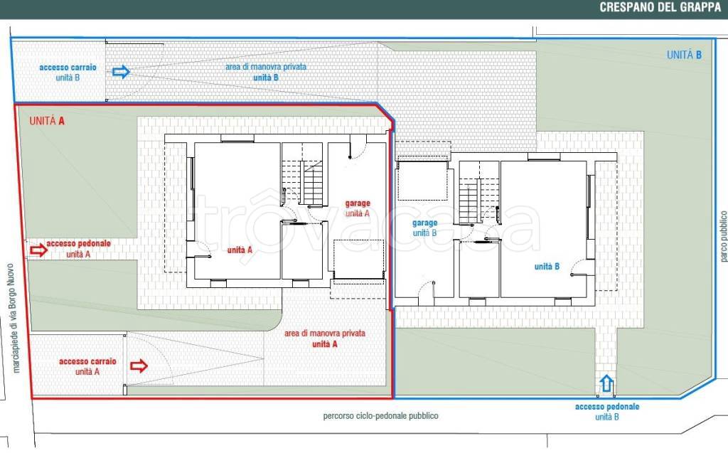
di nuova costruzione con giardino con posto auto con garage di nuova costruzione di recente ristrutturazione di recente costruzione
BATTOCCHIO GIUSEPPE PROPONE PRONTA CONSEGNA BELLISSIMA BIFAMILIARE A PIEVE DEL GRAPPA Crespano accesso da ovest VISTA PANORAMICA . Le due Unità affiancate sono in corso di costruzione e sorgeranno su splendida lottizzazione completamente rivolta a sud e con vista aperta a nord sul Monte Grappa. Al Piano Terra : ingresso con ampia zona soggiorno e spaziosa cucina a vista,1 Bagno. Oltre il vano scale si trova doppio garage non motorizzato .Non c'è piano interrato . Al Piano Primo: grande zona notte con 3 camere da letto, 1 bagno con doccia. Giardino privato con vialetto. Lontano da fonti di rumore ma allo stesso tempo comoda al paese. VISITE SU PRENOTAZIONE E SOLO ACCOMPAGNATI DALL' INCARICATO ALLA VENDITA BATTOCCHIO GIUSEPPE 3482842814. Per ogni tua esigenze immobiliare chiama Battocchio dott. Giuseppe : Laurea in Economia e Commercio con indirizzo giuridico presso l’Università Cà Foscari di Venezia. Studi tecnico commerciali Ex imprenditore e successivamente Manager all’estero per conto di società italiane di diritto estero. Ha sviluppato una consolidata esperienza da project Manager e advisor free lance. Dal 2011 ha ricoperto diversi ruoli come figura fiduciaria e consulente di imprenditori nel ramo immobiliare. Nel 2012 ha conseguito innumerevoli esperienze nella gestione ordinaria e straordinaria di patrimoni immobiliari conseguendo l’iscrizione al ruolo Agenti in Affari aziendali e immobiliari secondo la nuova normativa D.Lgs. 26 marzo 2010 n. 59 e D.M. 2011. Esperto in tecnica Bancaria e capace negoziatore, ha sviluppato una sempre più approfondita capacità di consulenza immobiliare sottoscrivendo via via accordi, contratti e incarichi sia per la compravendita di immobili ordinari, industriali, commerciali e residenziali. Si precisa che il capitolato è indicativo e soggetto alle variazioni di costruzione. Il prezzo non comprende iva, recinzione , integrazione fotovoltaico , le sistemazioni giardino e la personalizzazione dei clienti



