Valutazione immobiliare indipendente, accurata e gratuita
Casa indipendente in vendita ad Oderzo a 480.000 € (cod.65096711)
Caasa non ha sufficienti informazioni per commentare la casa indipendente in vendita ad Oderzo - 65096711.
Analisi immobiliare
I dati in posseso di Caasa per quest'immobile sono insufficienti, inaffidabili o contraddittori per proporre un'analisi attendibile.
Mercato immobiliare ad Oderzo
Per quanto riguarda più in generale la città di Oderzo, sono presenti al momento più di cento annunci per
case indipendenti in vendita (meno del 5% dell'intera provincia)
e il maggior numero di annunci per questa tipologia sono relativi alla zona di Faè.
Relativamente alla dinamica dei prezzi, possiamo dire che negli ultimi 6 mesi i prezzi medi in tutta la città per case indipendenti in vendita sono
in forte aumento (+13,79%).
NOVITÀ Il risultato che vedi dipende dai dati che siamo riusciti ad estrarre dall'annuncio: ottieni una stima più accuranta di questo immobile, inserendo dati più precisi.
N.B. L'Opinione di Caasa® è un servizio sperimentale realizzato tramite tecniche di Intelligenza Artificiale, fornito senza alcuna garanzia di correttezza e completezza. Leggi il disclaimer o segnalaci un problema.
IMMAGINI
IN SINTESI
PROPOSTO DA:
AGENZIA IMMOBILIARE CIENNE DI CARLO NOGAROTTO
DESCRIZIONE
di nuova costruzione con posto auto con garage con giardino con terrazza con termocondizionamento di nuova costruzione con climatizzazione
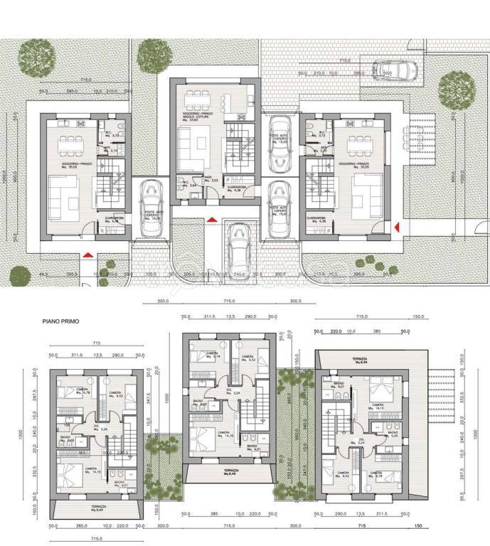
A Oderzo (TV), in zona attigua al centro e ben collegata a tutti i servizi, proponiamo in acquisto villette unifamiliari indipendenti di prossima costruzione. Gli immobili si svilupperanno su due livelli e saranno così composti. Il piano terra ospiterà la zona giorno, composta di ampia zona living con soggiorno e cucina a vista, dotata di grandi vetrate sul giardino privato; cabina armadio e bagno-lavanderia. All'esterno, box/posto auto coperto e posti auto. Al primo piano ci sarà zona notte con tre camere da letto (una matrimoniale e due singole), con bel bagno finestrato. Il riscaldamento sarà autonomo, a pompa di calore con impianto irradiante a pavimento alimentato attraverso l'impianto fotovoltaico; raffrescamento con impianto split. Alti standard tecnologici e di efficienza energetica caratterizzano il progetto di costruzione, realizzato con finiture di pregio in linea con il profilo energetico A4. MAGGIORI INFORMAZIONI IN AGENZIA AGENZIA IMMOBILIARE CIENNE ODERZO (TREVISO) TEL 0422.815891 altre nostre proposte su: www.immobiliarecienne.it CON NOI LA VENDITA DEL VOSTRO IMMOBILE SI PERFEZIONERA' IN TEMPI BREVISSIMI, NON ASPETTATE A CONTATTARCI AL N. 0422.815891. AFFRETTATEVI


