Valutazione immobiliare indipendente, accurata e gratuita
L'Opinione di Caasa® per l'appartamento in vendita a Nervesa della Battaglia in zona Bavaria a 245.000 € (cod.652c37f5)
Secondo Caasa, per l'appartamento a Nervesa della Battaglia Bavaria, la richiesta di 245.000 € è significativamente svantaggiosa rispetto agli annunci simili.
Analisi immobiliare
L'appartamento è proposto in vendita a
245.000 € per una
superficie commerciale di
97 m² e quindi ad un prezzo per metro quadrato pari a
2525 €/m²
.
Tale prezzo
è meno conveniente di quello stimato da Caasa per immobili in vendita simili per tipologia e caratteristiche, presenti nella stessa zona, che è compreso tra
1.907 €/m² e
2.121 €/m².
Presa in considerazione la posizione dell'appartamento sono stati utilizzati come raffronto i valori medi nelle zone limitrofe e soprattutto le richieste in vendita per appartamenti in zona Bavaria (da 1.645 €/m² a 2.555 €/m²). Caasa non è stata in grado di determinare la classe energetica, ma ad affinare la stima hanno contribuito però anche lo stato dell'immobile (di nuova costruzione) e la presenza di alcune caratteristiche significative come il garage. In virtù di queste considerazioni i valori possibili per l'offerta costituiscono un intervallo relativamente ampio.
Mercato immobiliare a Nervesa della Battaglia
Per quanto riguarda più in generale il comune di Nervesa della Battaglia, sono presenti al momento più di cinquanta annunci per
appartamenti in vendita (meno dell'1% dell'intera provincia)
e il maggior numero di annunci per questa tipologia sono relativi proprio alla zona di Bavaria.
Per quanto riguarda la richiesta media in zona Bavaria, dove sorge l'appartamento, essa è pari a circa
2.125 €/m² per appartamenti in vendita.
Relativamente alla dinamica dei prezzi, possiamo dire che negli ultimi 6 mesi i prezzi medi in tutto il comune per appartamenti in vendita sono
in debole aumento (+1,26%).
NOVITÀ Il risultato che vedi dipende dai dati che siamo riusciti ad estrarre dall'annuncio: ottieni una stima più accuranta di questo immobile, inserendo dati più precisi.
N.B. L'Opinione di Caasa® è un servizio sperimentale realizzato tramite tecniche di Intelligenza Artificiale, fornito senza alcuna garanzia di correttezza e completezza. Leggi il disclaimer o segnalaci un problema.
IMMAGINI
IN SINTESI
DESCRIZIONE
di nuova costruzione con posto auto con garage con terrazza con termocondizionamento di nuova costruzione
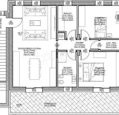
Vendesi nel comune di Nervesa della Battaglia precisamente a Bavaria ai piedi del Montello, appartamento al primo piano di nuova costruzione classe A4, con possibilita di scelta delle finiture. Soggiorno/cucina luminoso open space di 33 mq che si affaccia su un bellissimo terrazzo di 18,26 mq, disbrigo, camera matrimoniale di 14,33 mq, camera doppia di 13,68 mq, vano tecnico e due bagni. Al piano terra garage di 20,83 mq e posto auto esterno. L'appartamento e dotato di pannelli fotovoltaici, riscaldamento a pavimento, condizionatore, videocitofono, cancello automatizzato, predisposizione impianto di allarme

