Valutazione immobiliare indipendente, accurata e gratuita
Casa indipendente in vendita a Motta di Livenza in zona Lorenzaga (cod.64f6a2c1)
Caasa non ha sufficienti informazioni per commentare la casa indipendente a Motta di Livenza Lorenzaga - 64f6a2c1.
Analisi immobiliare
I dati in posseso di Caasa per quest'immobile sono insufficienti, inaffidabili o contraddittori per proporre un'analisi attendibile.
Mercato immobiliare a Motta di Livenza
Per quanto riguarda più in generale il comune di Motta di Livenza, sono presenti al momento più di cinquanta annunci per
case indipendenti in vendita (meno dell'1% dell'intera provincia)
e il maggior numero di annunci per questa tipologia sono relativi alla zona di San Giovanni, mentre la zona di Lorenzaga risulta molto meno attiva considerando il numero di annunci presenti.
Relativamente alla dinamica dei prezzi, possiamo dire che negli ultimi 6 mesi i prezzi medi in tutto il comune per case indipendenti in vendita sono
in calo (-3,57%).
NOVITÀ Il risultato che vedi dipende dai dati che siamo riusciti ad estrarre dall'annuncio: ottieni una stima più accuranta di questo immobile, inserendo dati più precisi.
N.B. L'Opinione di Caasa® è un servizio sperimentale realizzato tramite tecniche di Intelligenza Artificiale, fornito senza alcuna garanzia di correttezza e completezza. Leggi il disclaimer o segnalaci un problema.
IMMAGINI
IN SINTESI
PROPOSTO DA:
AGENZIA IMMOBILIARE CIENNE DI CARLO NOGAROTTO
DESCRIZIONE
con posto auto con garage con cantina con cucina abitabile
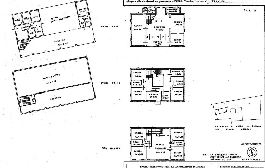
In zona agricola, vendiamo splendida Villa del '700 con barchessa costituita da un corpo abitazione che si sviluppa su tre livelli. Il primo livello è compost o di: ampio portico centrale, cucina abitabile, sala da pranzo, salotto, lavanderia, ampia […]
