Valutazione immobiliare indipendente, accurata e gratuita
Casa indipendente in vendita a Montebelluna a 93.000 € (cod.653e501a)
Caasa non ha sufficienti informazioni per commentare la casa indipendente in vendita a Montebelluna - 653e501a.
Analisi immobiliare
I dati in posseso di Caasa per quest'immobile sono insufficienti, inaffidabili o contraddittori per proporre un'analisi attendibile.
Mercato immobiliare a Montebelluna
Per quanto riguarda più in generale la città di Montebelluna, sono presenti al momento più di 300 annunci per
case indipendenti in vendita (meno del 5% dell'intera provincia)
e il maggior numero di annunci per questa tipologia sono relativi alla zona di San Gaetano.
Possiamo inoltre considerare che in tutta la città negli ultimi 6 mesi, i prezzi per case indipendenti in vendita sono
in leggero aumento (+3,18%).
NOVITÀ Il risultato che vedi dipende dai dati che siamo riusciti ad estrarre dall'annuncio: ottieni una stima più accuranta di questo immobile, inserendo dati più precisi.
N.B. L'Opinione di Caasa® è un servizio sperimentale realizzato tramite tecniche di Intelligenza Artificiale, fornito senza alcuna garanzia di correttezza e completezza. Leggi il disclaimer o segnalaci un problema.
IMMAGINI
IN SINTESI
PROPOSTO DA:
asteaffari.com
DESCRIZIONE
da ristrutturare con posto auto con garage con giardino con termocondizionamento con riscaldamento autonomo da ristrutturare senza ascensore in asta giudiziaria
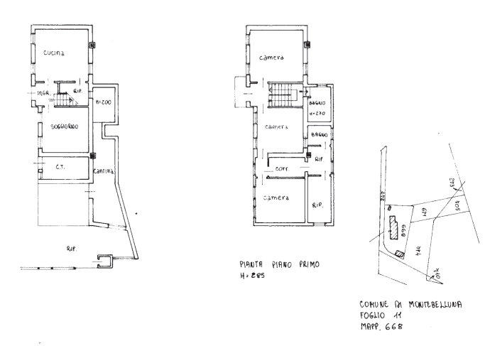
Rif. A.A.0-25 Vendita all'asta - casa singola su 2 livelli in data 24 febbraio 2026 Descrizione: trattasi di un'abitazione unifamiliare disposta ai piani terra e primo, facente parte di un fabbricato sito in Comune di Montebelluna (TV), in Via Emilio Bongioanni (in Catasto Via Emilio Bongiovanni) n. 64; annessi due ripostigli su corpo di fabbrica staccato al piano terra; pertinenziali due garage al piano terra di cui uno su corpo di fabbrica staccato e area scoperta esclusiva di mq. 791 catastali. Accesso attraverso proprietà di terzi. Superficie commerciale complessiva mq.289. Prezzo minimo base asta : da euro 93.000,00 L'immobile viene venduto tramite asta giudiziaria, ed il prezzo indicato si riferisce al prezzo minimo accettato per la partecipazione all'asta. Aste-Affari fornisce un servizio di assistenza e consulenza tecnica, legale, fiscale e finanziaria su acquisti all'asta e affari immobiliari, al fine di rendere più facile e sicuro l'acquisto di un immobile proveniente dal mercato giudiziario oppure da occasioni presenti sul mercato immobiliare. Analisi di fattibilità, tecnica, burocratica, finanziaria, legale, esame problematiche e vincoli, conteggio costi accessori ed occulti, assistenza in tutte le fasi della procedura fino alla consegna delle chiavi dell'immobile. L'acquisto può essere finanziato tramite mutuo, e, ove possibile anche in pre-asta tramite procedura di saldo-stralcio. Per info aggiuntive, prenotazione visione, consulenza ed assistenza su asta : Studio di Consulenza : "aste-affari.com" info: 04221781118 04221780185 www.aste-affari.com Sei un debitore ? Chiamaci ! Abbiamo soluzioni personalizzate anche per te


