Valutazione immobiliare indipendente, accurata e gratuita
Appartamento in vendita a Montebelluna a 650.000 € (cod.650f3023)
Caasa non ha sufficienti informazioni per commentare l'appartamento in vendita a Montebelluna - 650f3023.
Analisi immobiliare
I dati in posseso di Caasa per quest'immobile sono insufficienti, inaffidabili o contraddittori per proporre un'analisi attendibile.
Mercato immobiliare a Montebelluna
Per quanto riguarda più in generale la città di Montebelluna, sono presenti al momento più di 300 annunci per
appartamenti in vendita (meno del 5% dell'intera provincia)
e il maggior numero di annunci per questa tipologia sono relativi alla zona di La Pieve.
La dinamica dei prezzi in tutta la città mostra che negli ultimi 6 mesi, i prezzi per appartamenti in vendita sono
in forte aumento (+13,07%).
NOVITÀ Il risultato che vedi dipende dai dati che siamo riusciti ad estrarre dall'annuncio: ottieni una stima più accuranta di questo immobile, inserendo dati più precisi.
N.B. L'Opinione di Caasa® è un servizio sperimentale realizzato tramite tecniche di Intelligenza Artificiale, fornito senza alcuna garanzia di correttezza e completezza. Leggi il disclaimer o segnalaci un problema.
IMMAGINI
IN SINTESI
PROPOSTO DA:
IRIS L'AGENZIA IMMOBILIARE S.N.C.
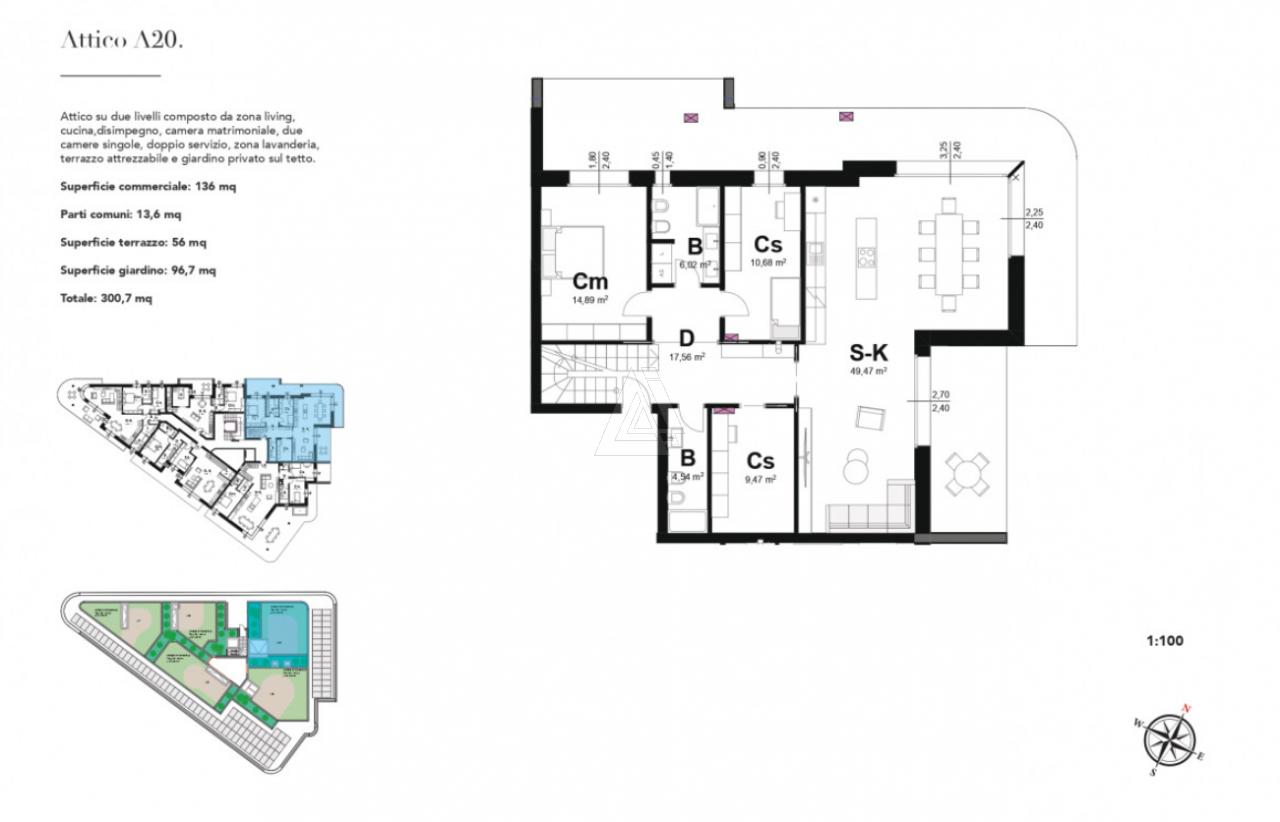
DESCRIZIONE
di nuova costruzione con posto auto con garage con terrazza di nuova costruzione
L' Agenzia IRIS propone in vendita Attico di nuova costruzione, a pochi minuti dal centro e dai principali servizi cittadini. L'immobile si contraddistingue per i suoi spazi e per la sua luminosità, si estende per una superfice commerciale di 136mq.; […]
