Valutazione immobiliare indipendente, accurata e gratuita
Negozio in vendita a Montebelluna a 69.000 € (cod.64fc207e)
Caasa non ha sufficienti informazioni per commentare il negozio in vendita a Montebelluna - 64fc207e.
Analisi immobiliare
I dati in posseso di Caasa per quest'immobile sono insufficienti, inaffidabili o contraddittori per proporre un'analisi attendibile.
Mercato immobiliare a Montebelluna
Per quanto riguarda più in generale la città di Montebelluna, sono presenti al momento più di cento annunci per
negozi in vendita (meno del 10% dell'intera provincia)
e il maggior numero di annunci per questa tipologia sono relativi alla zona di La Pieve.
Vedi altre informazioni direttamente su
Mercato-Immobiliare.info
NOVITÀ Il risultato che vedi dipende dai dati che siamo riusciti ad estrarre dall'annuncio: ottieni una stima più accuranta di questo immobile, inserendo dati più precisi.
N.B. L'Opinione di Caasa® è un servizio sperimentale realizzato tramite tecniche di Intelligenza Artificiale, fornito senza alcuna garanzia di correttezza e completezza. Leggi il disclaimer o segnalaci un problema.
IMMAGINI
IN SINTESI
PROPOSTO DA:
Studio Canova
DESCRIZIONE
di recente costruzione con termocondizionamento con riscaldamento autonomo di recente costruzione in asta giudiziaria
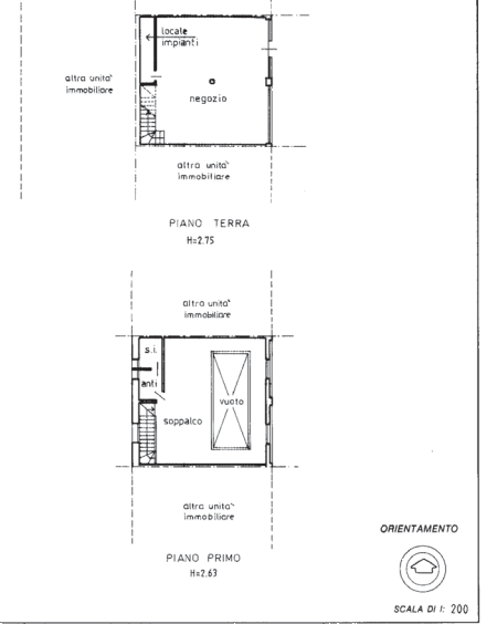
NUOVA PROPOSTA IMMOBILE LIBERO Negozio a Montebelluna (TV) Via Risorgimento. Unità sviluppata al piano terra facente parte di un edificio residenziale/commerciale, composta da zona negozio e locale impianti al piano terra; soppalco, antibagno e dei servizi igienici al piano primo. Per te la possibilità di avere un preventivo per il mutuo a condizioni vantaggiose con i nostri partner. Ulteriori dettagli, foto degli interni, planimetrie e altre info, se disponibili, saranno consultabili previo appuntamento nella sede di CONEGLIANO con MATTEO che inoltre ti informerà sulle possibilità di aggiudicarti questo affare. L'immobile pubblicato al momento è sottoposto a procedura di vendita legale; Gescom srl è specializzata nella ricerca e pianificazione di investimenti immobiliari secondo innovative strategie di acquisto. Contattaci subito potrai valutare assieme a un nostro tecnico canali distinti di acquisto dell'immobile, procedura di vendita diretta senza ricorrere all'asta (d.lgs. 149/2022) e ancora stralcio immobiliare. Le informazioni sopra riportate non sostituiscono l'avviso pubblicato dal Tribunale competente ne' l'integrale gestione da parte del delegato designato. Il testo e le specifiche indicate nella presente pagina sono generate automaticamente attraverso l'utilizzo di software e/o da A. I., Gescom srl invita a verificare le formazioni e i materiali multimediali sui canali ufficiali, declinando fin d'ora ogni responsabilità su eventuali errori o incongruenze. Gescom Italia srl leader negli stralci immobiliari e nella consulenza tecnico legale, non si occupa di attività di intermediazione imm. di cui alla legge 39/89. Cl. energ. da verificare. Le foto pubblicate nel presente annuncio sono indicative e non esaustive della tipologia, qualità, consistenza e indicazione geografica dell'immobile. CLASSE ENERGETICA: A


