Valutazione immobiliare indipendente, accurata e gratuita
L'Opinione di Caasa® per l'appartamento in vendita a Mogliano Veneto a 550.000 € (cod.6531dcb6)
Secondo Caasa, per l'appartamento in vendita a Mogliano Veneto, la richiesta di 550.000 € è leggermente vantaggiosa rispetto agli annunci simili.
Analisi immobiliare
L'appartamento è proposto in vendita (da Nuova S.Paolo immobiliare) a
550.000 € per una
superficie commerciale di
150 m² e quindi ad un prezzo per metro quadrato pari a
3666 €/m²
.
Questo prezzo
è un po' più basso di quello stimato da Caasa per immobili in vendita simili per tipologia, caratteristiche e classe energetica, che è compreso tra
3.843 €/m² e
4.191 €/m².
Sono stati utilizzati come raffronto i soli valori medi cittadini per appartamenti (da 2.065 €/m² a 3.540 €/m²) e per attici (da 2.170 €/m² a 3.890 €/m²), visto che non è stato possibile determinare in modo affidabile la posizione dell'immobile. All'elaborazione della stima ha però contribuito anche la classe energetica (A+) oltre alla condizione dell'immobile (di nuova costruzione) e alla presenza di alcune caratteristiche significative come il garage. Per queste ragioni l'intervallo dei valori considerati accettabili per l'offerta è comunque ampio.
Mercato immobiliare a Mogliano Veneto
Per quanto riguarda più in generale la città di Mogliano Veneto, sono presenti al momento oltre 500 annunci per
appartamenti in vendita (meno del 10% dell'intera provincia)
e il maggior numero di annunci per questa tipologia sono relativi alla zona di Campocroce.
Possiamo inoltre considerare che in tutta la città negli ultimi 6 mesi, i prezzi per appartamenti in vendita sono
in forte aumento (+11,01%).
NOVITÀ Il risultato che vedi dipende dai dati che siamo riusciti ad estrarre dall'annuncio: ottieni una stima più accuranta di questo immobile, inserendo dati più precisi.
N.B. L'Opinione di Caasa® è un servizio sperimentale realizzato tramite tecniche di Intelligenza Artificiale, fornito senza alcuna garanzia di correttezza e completezza. Leggi il disclaimer o segnalaci un problema.
IMMAGINI
IN SINTESI
DESCRIZIONE
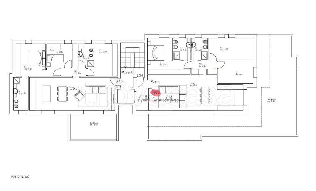
di nuova costruzione con posto auto con garage di nuova costruzione con terrazza con termocondizionamento
Mogliano Veneto (TV), nella zona ovest, siamo a proporre una nuova costruzione con una particolare architettura dalla linea moderna e pulita dove le unità immobiliari saranno realizzate con un'attenzione particolare alla qualità dei materiali, alla funzionalità degli spazi nell' ottica del risparmio energetico, dell'abbattimento dell' inquinamento acustico e termico per costruire immobili in . DA CAPITOLATO:pannelli fotovoltaici con 2 KW per unità, impianto di riscaldamento radiante a pavimento con termoregolazione per le 2 zone (notte e giorno), pompa di calore per raffrescamento estivo, impianto autonomo con bollitore di ultima generazione per il riscaldamento dell'acqua calda, videocitofono, impianto antifurto e servizio di sorveglianza con Rangers Battistolli che sarà gratuito per i primi 2 mesi dalla data di attivazione post rogito. I rivestimenti interni saranno in gres porcellanato per la zona giorno ed i bagni, in listoni di legno prefinito (rovere) per le camere; nei bagni sanitari e piatto doccia con rubinetteria Gessi, maniglie Olivari per le porte interne. PREDISPOSIZIONE:impianto di ventilazione meccanica forzata puntuale (VMC) e di aria condizionata, prese per ricarica auto elettriche, eventuale installazione di batterie di accumulo per l'impianto fotovoltaico, motorizzazione dei basculanti dei box auto. L'unità I dell'edificio 2.3 è, posta al terzo ed ultimo piano, con ingresso, zona giorno di quasi 50 mq, con 2 grand vetrate per accedere alla terrazza di quasi 100 mq, da personalizzare secondo propri gusti con cucina esterna, zona pranzo, salotto esterni, solarium e area relax, disimpegno per la zona notte dove troviamo 1 camera matrimoniale padronale con bagno ad uso esclusivo, 2 camere singole spaziose, un ulteriore bagno finestrato con doccia. Garage al piano terra e e posto auto di proprietà. VENDITA DIRETTA Inizio costruzione marzo 2026 - fine lavori ottobre 2027 Prezzo € 550.000,00 Rif. ME862_21 L'indirizzo dell'immobile è meramente indicativo. Le immagini sono protette da copyright.[…]


