Valutazione immobiliare indipendente, accurata e gratuita
L'Opinione di Caasa® per l'appartamento in vendita a Mogliano Veneto a 270.000 € (cod.6531dcb1)
Secondo Caasa, per l'appartamento in vendita a Mogliano Veneto, la richiesta di 270.000 € è significativamente vantaggiosa rispetto agli annunci simili.
Analisi immobiliare
L'appartamento è proposto in vendita (da Nuova S.Paolo immobiliare) a
270.000 € per una
superficie commerciale di
85 m² e quindi ad un prezzo per metro quadrato pari a
3176 €/m²
.
Tale prezzo
è più conveniente di quello stimato da Caasa per immobili in vendita simili per tipologia, caratteristiche e classe energetica, che è compreso tra
3.687 €/m² e
3.994 €/m².
Sono stati utilizzati nel raffronto i soli valori medi cittadini, visto che non è stato possibile determinare in modo affidabile la posizione dell'immobile. All'elaborazione della stima ha però contribuito anche la classe energetica (A+) oltre alla condizione dell'immobile (di nuova costruzione) e alla presenza di alcune caratteristiche significative come il garage. Per queste ragioni i valori considerati accettabili per l'offerta costituiscono un intervallo comunque ampio.
Mercato immobiliare a Mogliano Veneto
Per quanto riguarda più in generale la città di Mogliano Veneto, sono presenti al momento oltre 500 annunci per
appartamenti in vendita (meno del 10% dell'intera provincia)
e il maggior numero di annunci per questa tipologia sono relativi alla zona di Campocroce.
Relativamente alla dinamica dei prezzi, possiamo dire che negli ultimi 6 mesi i prezzi medi in tutta la città per appartamenti in vendita sono
in sostanziale aumento (+5,97%).
NOVITÀ Il risultato che vedi dipende dai dati che siamo riusciti ad estrarre dall'annuncio: ottieni una stima più accuranta di questo immobile, inserendo dati più precisi.
N.B. L'Opinione di Caasa® è un servizio sperimentale realizzato tramite tecniche di Intelligenza Artificiale, fornito senza alcuna garanzia di correttezza e completezza. Leggi il disclaimer o segnalaci un problema.
IMMAGINI
IN SINTESI
DESCRIZIONE
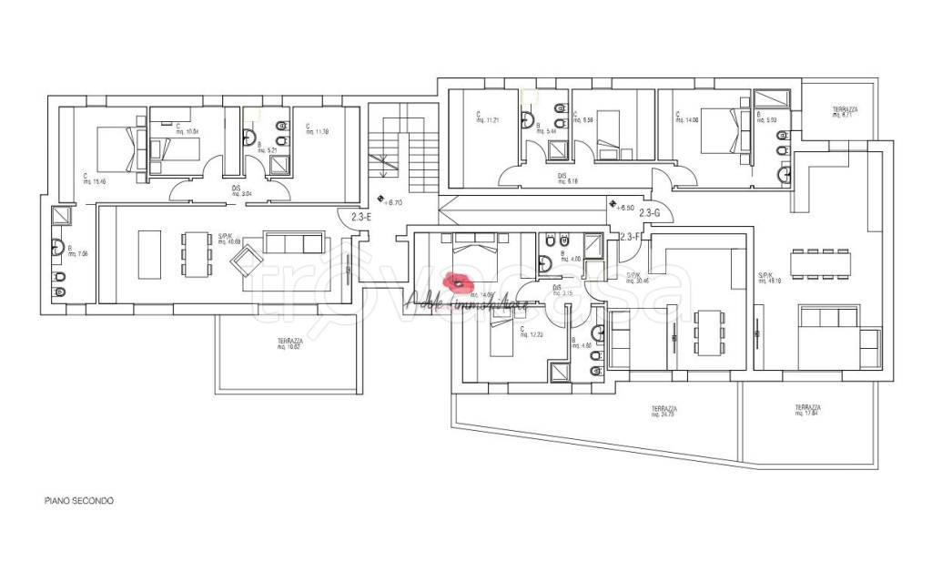
di nuova costruzione con posto auto con garage con terrazza di nuova costruzione con termocondizionamento
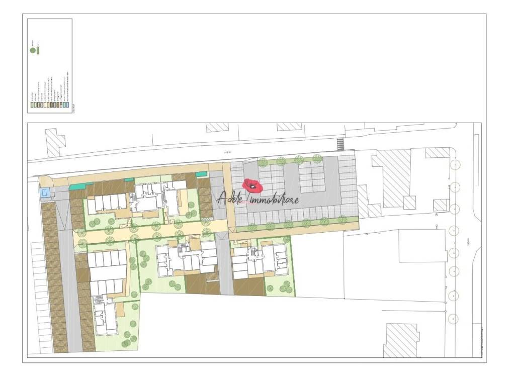
Mogliano Veneto (TV), nella zona ovest, siamo a proporre una nuova costruzione con una particolare architettura dalla linea moderna e pulita dove le unità immobiliari saranno realizzate con un'attenzione particolare alla qualità dei materiali, alla f […]
