Valutazione immobiliare indipendente, accurata e gratuita
L'Opinione di Caasa® per l'appartamento in vendita a Mogliano Veneto in zona Campocroce a 270.000 € (cod.6531dcad)
Secondo Caasa, per l'appartamento a Mogliano Veneto in zona Campocroce, la richiesta di 270.000 € è leggermente svantaggiosa rispetto agli annunci simili.
Analisi immobiliare
L'appartamento, situato nella zona OMI R1, è proposto in vendita (da Nuova S.Paolo immobiliare) a
270.000 € per una
superficie commerciale di
85 m² e quindi ad un prezzo per metro quadrato pari a
3176 €/m²
.
Tale prezzo
è un po' più alto di quello stimato da Caasa per immobili in vendita simili per tipologia e caratteristiche e localizzati nella stessa zona OMI, che è compreso tra
2.795 €/m² e
3.012 €/m².
Grazie alla conoscenza con buona approssimazione della localizzazione dell'immobile, è stato possibile utilizzare come raffronto i dati medi elaborati esattamente nella zona OMI di appertenenza (ZONA AGRICOLA, BORGHI RURALI E CASE SPARSE.) per appartamenti (da 1.790 €/m² a 3.035 €/m²). Anche se Caasa non è riuscita a determinare la classe energetica, ad affinare la stima hanno contribuito anche lo stato dell'immobile (di nuova costruzione) e la presenza di alcune caratteristiche significative come il garage o la disponibilità di una cantina. Per i motivi esposti i valori accettabili per l'offerta costituiscono un intervallo relativamente limitato.
Mercato immobiliare a Mogliano Veneto
Per quanto riguarda più in generale la città di Mogliano Veneto, sono presenti al momento oltre 500 annunci per
appartamenti in vendita (meno del 10% dell'intera provincia)
e il maggior numero di annunci per questa tipologia sono relativi alla zona di Mazzocco, ma anche la zona di Campocroce è molto attiva dal punto di vista immobiliare.
Per quanto riguarda la richiesta media in zona Campocroce, dove sorge l'appartamento, essa è pari a circa
2.450 €/m² per appartamenti in vendita.
Relativamente alla dinamica dei prezzi, possiamo dire che negli ultimi 6 mesi i prezzi medi in tutta la città per appartamenti in vendita sono
in deciso aumento (+8,77%).
NOVITÀ Il risultato che vedi dipende dai dati che siamo riusciti ad estrarre dall'annuncio: ottieni una stima più accuranta di questo immobile, inserendo dati più precisi.
N.B. L'Opinione di Caasa® è un servizio sperimentale realizzato tramite tecniche di Intelligenza Artificiale, fornito senza alcuna garanzia di correttezza e completezza. Leggi il disclaimer o segnalaci un problema.
IMMAGINI
IN SINTESI
DESCRIZIONE
di nuova costruzione con posto auto con garage di nuova costruzione con terrazza con termocondizionamento con cantina
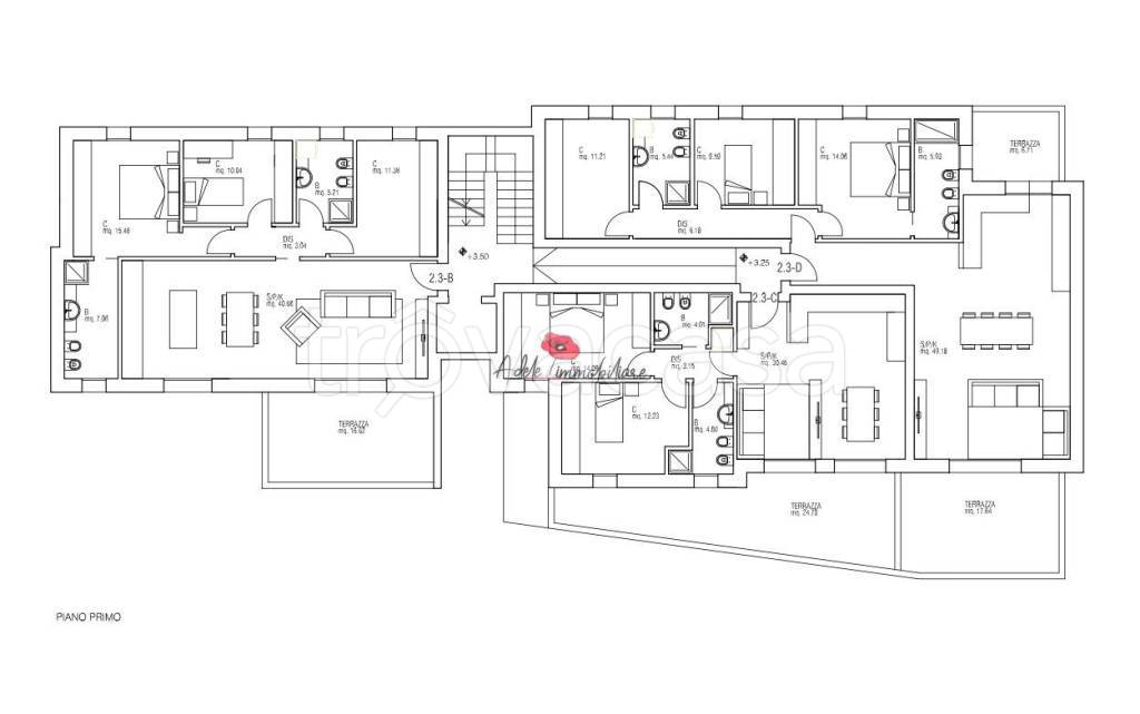
Mogliano Veneto (TV), nella zona ovest, siamo a proporre una nuova costruzione con una particolare architettura dalla linea moderna e pulita dove le unità immobiliari saranno realizzate con un'attenzione particolare alla qualità dei materiali, alla funzionalità degli spazi nell' ottica del risparmio energetico, dell'abbattimento dell' inquinamento acustico e termico per costruire immobili in . DA CAPITOLATO:pannelli fotovoltaici con 2 KW per unità, impianto di riscaldamento radiante a pavimento con termoregolazione per le 2 zone (notte e giorno), pompa di calore per raffrescamento estivo, impianto autonomo con bollitore di ultima generazione per il riscaldamento dell'acqua calda, videocitofono, impianto antifurto e servizio di sorveglianza con Rangers Battistolli che sarà gratuito per i primi 2 mesi dalla data di attivazione post rogito. I rivestimenti interni saranno in gres porcellanato per la zona giorno ed i bagni, in listoni di legno prefinito (rovere) per le camere; nei bagni sanitari e piatto doccia con rubinetteria Gessi, maniglie Olivari per le porte interne. PREDISPOSIZIONE:impianto di ventilazione meccanica forzata puntuale (VMC) e di aria condizionata, prese per ricarica auto elettriche, eventuale installazione di batterie di accumulo per l'impianto fotovoltaico, motorizzazione dei basculanti dei box auto. Questa soluzione ubicata nell'edificio 2.3, è l'unità C, posta al piano primo, con ingresso su zona giorno di circa 30 mq, con accesso da grandi vetrate scorrevoli alla terrazza abitabile da sfruttare come zona pranzo e salotto esterni fin dalle prime giornate di primavera, disimpegno per la zona notte dove troviamo 1 camera matrimoniale, 1 camera doppia, 2 bagni con doccia, ripostiglio lavanderia. Garage al piano terra e e posto auto di proprietà. VENDITA DIRETTA Inizio costruzione marzo 2026 - fine lavori ottobre 2027 Prezzo € 270.000,00 Rif. ME862_15 L'indirizzo dell'immobile è meramente indicativo. Le immagini sono protette da copyright. Potete chiamarci direttamente Elena 3248380276 Agn


