Valutazione immobiliare indipendente, accurata e gratuita
L'Opinione di Caasa® per l'appartamento in vendita a Mogliano Veneto a 420.000 € (cod.6531dca9)
Secondo Caasa, per l'appartamento in vendita a Mogliano Veneto, la richiesta di 420.000 € è leggermente vantaggiosa rispetto agli annunci simili.
Analisi immobiliare
L'appartamento, situato vicino a Via Selve nella zona OMI R1, è proposto in vendita (da Nuova S.Paolo immobiliare) a
420.000 € per una
superficie commerciale di
115 m² e quindi ad un prezzo per metro quadrato pari a
3652 €/m²
.
Tale prezzo
è di poco inferiore a quello stimato da Caasa per immobili in vendita simili per tipologia, caratteristiche, classe energetica e localizzati nella stessa zona OMI, che è compreso tra
3.873 €/m² e
4.169 €/m².
La conoscenza con buona approssimazione della localizzazione dell'immobile ha consentito di utilizzare come raffronto i dati medi elaborati esattamente nella zona OMI di appertenenza (ZONA AGRICOLA, BORGHI RURALI E CASE SPARSE.). Inoltre, Caasa ha potuto affinare la stima anche con la conoscenza della classe energetica (A+) oltre che dello stato dell'immobile (di nuova costruzione) e di alcune caratteristiche significative come il garage. Per queste considerazioni i valori accettabili per l'offerta costituiscono un intervallo abbastanza limitato.
Mercato immobiliare a Mogliano Veneto
Per quanto riguarda più in generale la città di Mogliano Veneto, sono presenti al momento oltre 500 annunci per
appartamenti in vendita (meno del 10% dell'intera provincia)
e il maggior numero di annunci per questa tipologia sono relativi alla zona di Campocroce.
Relativamente alla dinamica dei prezzi, possiamo dire che negli ultimi 6 mesi i prezzi medi in tutta la città per appartamenti in vendita sono
in forte aumento (+11,01%).
NOVITÀ Il risultato che vedi dipende dai dati che siamo riusciti ad estrarre dall'annuncio: ottieni una stima più accuranta di questo immobile, inserendo dati più precisi.
N.B. L'Opinione di Caasa® è un servizio sperimentale realizzato tramite tecniche di Intelligenza Artificiale, fornito senza alcuna garanzia di correttezza e completezza. Leggi il disclaimer o segnalaci un problema.
IMMAGINI
IN SINTESI
DESCRIZIONE
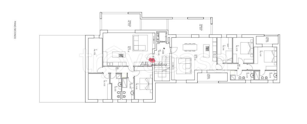
di nuova costruzione con posto auto con garage di nuova costruzione con terrazza con termocondizionamento
Mogliano Veneto (TV), nella zona ovest, siamo a proporre una nuova costruzione con una particolare architettura dalla linea moderna e pulita dove le unità immobiliari saranno realizzate con un'attenzione particolare alla qualità dei materiali, alla funzionalità degli spazi nell' ottica del risparmio energetico, dell'abbattimento dell' inquinamento acustico e termico per costruire immobili in . DA CAPITOLATO:pannelli fotovoltaici con 2 KW per unità, impianto di riscaldamento radiante a pavimento con termoregolazione per le 2 zone (notte e giorno), pompa di calore per raffrescamento estivo, impianto autonomo con bollitore di ultima generazione per il riscaldamento dell'acqua calda, videocitofono, impianto antifurto e servizio di sorveglianza con Rangers Battistolli che sarà gratuito per i primi 2 mesi dalla data di attivazione post rogito. I rivestimenti interni saranno in gres porcellanato per la zona giorno ed i bagni, in listoni di legno prefinito (rovere) per le camere; nei bagni sanitari e piatto doccia con rubinetteria Gessi, maniglie Olivari per le porte interne. PREDISPOSIZIONE:impianto di ventilazione meccanica forzata puntuale (VMC) e di aria condizionata, prese per ricarica auto elettriche, eventuale installazione di batterie di accumulo per l'impianto fotovoltaico, motorizzazione dei basculanti dei box auto. Questa soluzione ubicata nell'edificio 2.4, è l'unità E, posta al secondo ed ultimo piano con ingresso su zona giorno di oltre 40 mq ed accesso da grande vetrata scorrevole alla terrazza, disimpegno per la zona notte dove troviamo 2 camere matrimoniali, 1 camera singola spaziosa, 2 bagni finestrati con doccia. Garage al piano terra e e posto auto di proprietà. VENDITA DIRETTA Inizio costruzione marzo 2026 - consegna ottobre 2027 Prezzo € 420.000,00 Rif. ME862_26 L'indirizzo dell'immobile è meramente indicativo. Le immagini sono protette da copyright. Potete chiamarci direttamente Elena 3248380276 Agnese 3911168202; potete scrivere al nostro indirizzo mail: info@adeleimmobiliare.it; inviare u[…]


