Valutazione immobiliare indipendente, accurata e gratuita
L'Opinione di Caasa® per l'appartamento in vendita a Mogliano Veneto a 640.000 € (cod.64fa7a9c)
Secondo Caasa, per l'appartamento in vendita a Mogliano Veneto, la richiesta di 640.000 € è leggermente vantaggiosa rispetto agli annunci simili.
Analisi immobiliare
L'appartamento è proposto in vendita (da Nuova S.Paolo immobiliare) a
640.000 € per una
superficie commerciale di
197 m² e quindi ad un prezzo per metro quadrato pari a
3248 €/m²
.
Questo valore
è leggeremente più conveniente di quello stimato da Caasa per immobili in vendita simili per tipologia, caratteristiche e classe energetica, che è compreso tra
3.482 €/m² e
3.797 €/m².
Sono stati utilizzati nel raffronto i soli valori medi cittadini, visto che non è stato possibile determinare in modo affidabile la posizione dell'immobile. All'elaborazione della stima ha però contribuito anche la classe energetica (A+) oltre alla condizione dell'immobile (di nuova costruzione) e alla presenza di alcune caratteristiche significative come il garage o la presenza dell'ascensore. Per i motivi esposti l'intervallo dei valori considerati accettabili per l'offerta è comunque ampio.
Mercato immobiliare a Mogliano Veneto
Per quanto riguarda più in generale la città di Mogliano Veneto, sono presenti al momento oltre 500 annunci per
appartamenti in vendita (meno del 10% dell'intera provincia)
e il maggior numero di annunci per questa tipologia sono relativi alla zona di Campocroce.
Per quanto riguarda la dinamica dei prezzi, negli ultimi 6 mesi i prezzi medi in tutta la città per appartamenti in vendita sono
in sostanziale aumento (+5,97%).
NOVITÀ Il risultato che vedi dipende dai dati che siamo riusciti ad estrarre dall'annuncio: ottieni una stima più accuranta di questo immobile, inserendo dati più precisi.
N.B. L'Opinione di Caasa® è un servizio sperimentale realizzato tramite tecniche di Intelligenza Artificiale, fornito senza alcuna garanzia di correttezza e completezza. Leggi il disclaimer o segnalaci un problema.
IMMAGINI
IN SINTESI
DESCRIZIONE
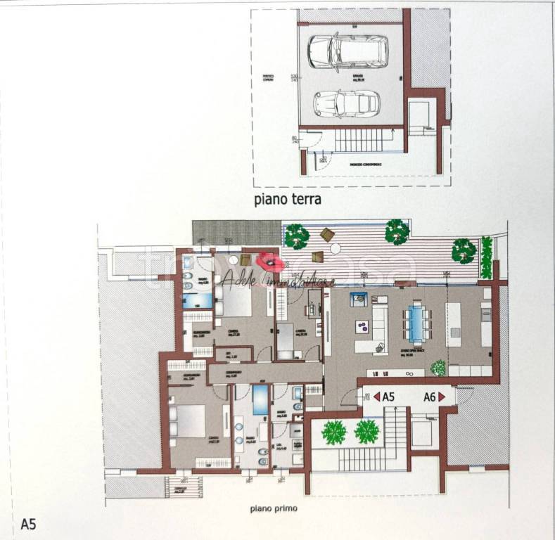
di nuova costruzione con posto auto con garage con terrazza di nuova costruzione con termocondizionamento con ascensore
Mogliano Veneto (TV), in una zona residenziale comoda al centro ma defilata dal traffico, vendiamo 4 meravigliosi appartamenti in costruzione con finiture di lusso, sistema di ventilazione meccanica controllata, aria condizionata canalizzata, riscaldamento con pompa di calore, a pavimento con pannelli radianti, pannelli fotovoltaici con 6 kw ad unità immobiliare, impianto antifurto con controllo da remoto e sensori inseriti nella porta blindata, nelle tapparelle e nelle finestre oltre ai sensori volumetrici ed al sensore nel garage, video citofono a colori, tapparelle motorizzate e tende oscuranti, serramenti esterni in pvc e zanzariere su tutte le finestre. Il fabbricato è costruito in un ottica di risparmio energetico, abbattimento di inquinamento acustico e termico con materiali di alta qualità. L'unità A5, posta al piano 1 è servita da ascensore ed è caratterizzata da ingresso spazioso, salone con cucina a vista e possibilità di separare gli ambienti con grandi vetrate scorrevoli, splendida terrazza abitabile da sfruttare fin dalle prime giornate primaverili come salotto esterno e seconda area pranzo, nella zona notte troviamo 1 bagno di servizio, 1 lavanderia ed 1 bagno finestrato con doccia, 1 camera singola, 1 camera matrimoniale padronale con guardaroba e bagno ad uso esclusivo, 1 seconda camera matrimoniale con guardaroba e poggiolo. Garage doppio al piano terra e posto auto di proprietà. Prezzo € 640.000,00 Rif. ME857_3 L'indirizzo dell'immobile è meramente indicativo. Le immagini sono protette da copyright. Potete chiamarci direttamente Elena 3248380276 Agnese 3911168202; potete scrivere al nostro indirizzo mail: info@adeleimmobiliare.it; inviare un messaggio utilizzando il nostro sito internet: www.adeleimmobiliare.it o uno dei nostri profili social : Facebook e Instagram

