Valutazione immobiliare indipendente, accurata e gratuita
L'Opinione di Caasa® per l'appartamento in vendita a Maserada sul Piave a 272.000 € (cod.64f3d4b1)
Secondo Caasa, per l'appartamento in vendita a Maserada sul Piave, la richiesta di 272.000 € è significativamente svantaggiosa rispetto agli annunci simili.
Analisi immobiliare
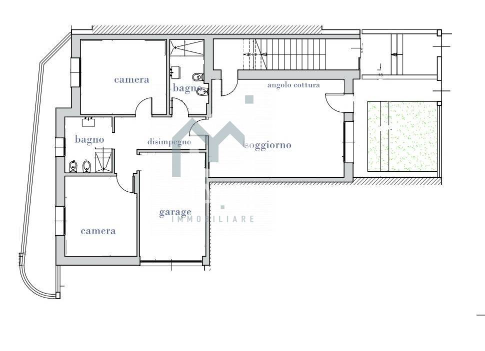
L'appartamento, situato nella zona OMI B1, è proposto in vendita a
272.000 € per una
superficie commerciale di
90 m² e quindi ad un prezzo per metro quadrato pari a
3022 €/m²
.
Tale prezzo
è meno conveniente di quello stimato da Caasa per immobili in vendita simili per tipologia e caratteristiche e localizzati nella stessa zona OMI, che è compreso tra
2.162 €/m² e
2.378 €/m².
Grazie alla conoscenza con buona approssimazione della localizzazione dell'immobile, è stato possibile utilizzare come raffronto i dati medi elaborati esattamente nella zona OMI di appertenenza (CENTRALE). Anche se Caasa non è riuscita a determinare la classe energetica, ad affinare la stima hanno contribuito anche lo stato dell'immobile (di nuova costruzione) e la presenza di alcune caratteristiche significative come il garage. Per queste ragioni i valori accettabili per l'offerta costituiscono un intervallo relativamente limitato.
Mercato immobiliare a Maserada sul Piave
Per quanto riguarda più in generale il comune di Maserada sul Piave, sono presenti al momento più di cinquanta annunci per
appartamenti in vendita (meno dell'1% dell'intera provincia)
e il maggior numero di annunci per questa tipologia sono relativi alla zona di Varago.
Relativamente alla dinamica dei prezzi, possiamo dire che negli ultimi 6 mesi i prezzi medi in tutto il comune per appartamenti in vendita sono
in forte aumento (+14,59%).
NOVITÀ Il risultato che vedi dipende dai dati che siamo riusciti ad estrarre dall'annuncio: ottieni una stima più accuranta di questo immobile, inserendo dati più precisi.
N.B. L'Opinione di Caasa® è un servizio sperimentale realizzato tramite tecniche di Intelligenza Artificiale, fornito senza alcuna garanzia di correttezza e completezza. Leggi il disclaimer o segnalaci un problema.
IMMAGINI
IN SINTESI
PROPOSTO DA:
PADOVA INTERMEDIAZIONI SRL
DESCRIZIONE
di nuova costruzione con posto auto con garage con giardino con termocondizionamento di nuova costruzione con angolo cottura con riscaldamento autonomo
Questo appartamento in vendita a Maserada sul Piave un'ottima opportunit per chi cerca una soluzione abitativa moderna e al passo con le tecnologie pi innovative. Situato al piano terra di una nuova costruzione, l'immobile presenta ambienti luminosi grazie alla presenza di grandi finestre che garantiscono un'ottima illuminazione. E' composto da soggiorno con angolo cottura di ben 30 mq, disimpegno ampio da poter posizionare delle armadiature, camera matrimoniale, seconda camera di 13 mq, e due bagni. L'appartamento collegato al locale garage. Il punto di forza di questa soluzione il giardino privato, ideale per trascorrere momenti di relax all'aperto o organizzare piacevoli pranzi e cene durante la bella stagione. L'immobile dotato di un sistema di riscaldamento autonomo a pannelli fotovoltaici, che permette di ridurre notevolmente i costi energetici. Il riscaldamento a pavimento che garantisce un calore uniforme e confortevole in ogni stanza. In sintesi, questo appartamento 2 camere in vendita a Maserada sul Piave una soluzione moderna, dotata di tutti i comfort e ideale per chi cerca una casa pronta per essere abitata e che punta all'efficienza energetica. Non perdere l'occasione di visitarlo e cogliere questa opportunit unica sul mercato immobiliare. Maggiori informazioni in agenzia. Si precisa che l'indirizzo presente non identifica l'esatta ubicazione dell'immobile questo al fine di tutelare la privacy e la riservatezza del venditore. - SC9480873


