Valutazione immobiliare indipendente, accurata e gratuita
Casa indipendente in vendita ad Istrana a 173.000 € (cod.64f4fcc8)
Caasa non ha sufficienti informazioni per commentare la casa indipendente in vendita ad Istrana - 64f4fcc8.
Analisi immobiliare
I dati in posseso di Caasa per quest'immobile sono insufficienti, inaffidabili o contraddittori per proporre un'analisi attendibile.
Mercato immobiliare ad Istrana
Per quanto riguarda più in generale il comune di Istrana, sono presenti al momento circa cento annunci per
case indipendenti in vendita (meno del 5% dell'intera provincia)
e il maggior numero di annunci per questa tipologia sono relativi alla zona di Pezzan.
Per quanto riguarda la dinamica dei prezzi, negli ultimi 6 mesi i prezzi medi in tutto il comune per case indipendenti in vendita sono
sostanzialmente stabili (+0,98%).
NOVITÀ Il risultato che vedi dipende dai dati che siamo riusciti ad estrarre dall'annuncio: ottieni una stima più accuranta di questo immobile, inserendo dati più precisi.
N.B. L'Opinione di Caasa® è un servizio sperimentale realizzato tramite tecniche di Intelligenza Artificiale, fornito senza alcuna garanzia di correttezza e completezza. Leggi il disclaimer o segnalaci un problema.
IMMAGINI
IN SINTESI
PROPOSTO DA:
asteaffari.com
DESCRIZIONE
con posto auto con garage con terrazza con cantina in asta giudiziaria
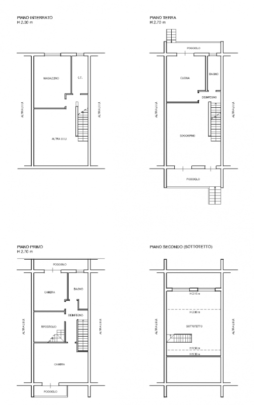
Rif. A.A.22-25 Vendita all'asta - casa a schiera su 4 livelli in data 21 novembre 2025 Descrizione: trattasi di un'unità immobiliare ad uso residenziale sita nel Comune di Istrana (TV), in Via Storti n. 4. Parte di un più ampio edificio plurifamiliare, trattasi di porzione di casa a schiera composta da:-PIANO INTERRATO: garage, magazzino e centrale termica;-PIANO TERRA: soggiorno, cucina, bagno e terrazze;-PIANO PRIMO: due camere, bagno, ripostiglio e disimpegno;-PIANO SECONDO: sottotetto ad uso magazzino, oltre ad area scoperta di circa mq. 103, il tutto per una superficie commerciale di circa mq. 229. L'immobile viene venduto tramite asta giudiziaria, ed il prezzo indicato si riferisce al prezzo minimo accettato per la partecipazione all?asta. Aste-Affari fornisce un servizio di assistenza e consulenza tecnica, legale, fiscale e finanziaria su acquisti all?asta e affari immobiliari, al fine di rendere più facile e sicuro l'acquisto di un immobile proveniente dal mercato giudiziario oppure da occasioni presenti sul mercato immobiliare. Analisi di fattibilità , tecnica, burocratica, finanziaria, legale, esame problematiche e vincoli, conteggio costi accessori ed occulti, assistenza in tutte le fasi della procedura fino alla consegna delle chiavi dell?immobile. L'acquisto può essere finanziato tramite mutuo, e, ove possibile anche in pre-asta tramite procedura di saldo-stralcio. Prezzo minimo base asta : da euro 173.000,00 Per info aggiuntive, prenotazione visione, consulenza ed assistenza su asta : Studio di Consulenza : "aste-affari.com" Info: 042217801118 - 04221780185 www.aste-affari.com Sei un debitore ? Chiamaci ! Abbiamo soluzioni personalizzate anche per te

