Valutazione immobiliare indipendente, accurata e gratuita
Casa indipendente in vendita a Giavera del Montello a 40.000 € (cod.657748f2)
Caasa non ha sufficienti informazioni per commentare la casa indipendente a Giavera del Montello - 657748f2.
Analisi immobiliare
I dati in posseso di Caasa per quest'immobile sono insufficienti, inaffidabili o contraddittori per proporre un'analisi attendibile.
Mercato immobiliare a Giavera del Montello
Per quanto riguarda più in generale il comune di Giavera del Montello, sono presenti al momento più di trenta annunci per
case indipendenti in vendita (meno dell'1% dell'intera provincia) .
Possiamo inoltre considerare che in tutto il comune negli ultimi 6 mesi, i prezzi per case indipendenti in vendita sono
in deciso aumento (+9,86%).
NOVITÀ Il risultato che vedi dipende dai dati che siamo riusciti ad estrarre dall'annuncio: ottieni una stima più accuranta di questo immobile, inserendo dati più precisi.
N.B. L'Opinione di Caasa® è un servizio sperimentale realizzato tramite tecniche di Intelligenza Artificiale, fornito senza alcuna garanzia di correttezza e completezza. Leggi il disclaimer o segnalaci un problema.
IMMAGINI
IN SINTESI
PROPOSTO DA:
Agenzia Immobiliare Omega di Costa Cristina
via Roma 137, Ponzano Veneto (TV)
Verificata da Caasa®
DESCRIZIONE
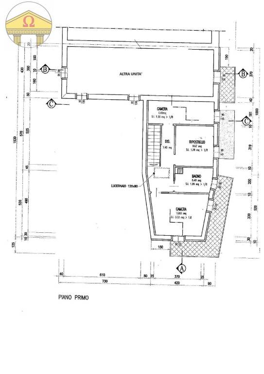
da ristrutturare con posto auto con garage da ristrutturare con terrazza
GIAVERA DEL MONTELLO - FRAZIONE, porzione completamente indipendente in contesto centrale e servito. Mq 120 distribuiti tra piano terra e primo, con mq. 200 di scoperto, ampio magazzino condonato da destinarsi a garage o posto auto coperto. Immobile completamente da ristrutturare. Progetto approvato per porzione indipendente, oggi scaduto ma rinnovabile. La descrizione di riferisce alle potenzialità del progetto. Definizione immediata. Planimetrie di progetto allegate. Rif. 2990 Agenzia Omega - Il tuo partner immobiliare di fiducia. Per altre proposte, visita il nostro sito https://www.agenziaomega.it


