Valutazione immobiliare indipendente, accurata e gratuita
Appartamento in vendita a Fontanelle a 66.000 € (cod.6579df3b)
Caasa non ha sufficienti informazioni per commentare l'appartamento in vendita a Fontanelle - 6579df3b.
Analisi immobiliare
I dati in posseso di Caasa per quest'immobile sono insufficienti, inaffidabili o contraddittori per proporre un'analisi attendibile.
Mercato immobiliare a Fontanelle
Per quanto riguarda più in generale il comune di Fontanelle, sono presenti al momento più di venti annunci per
appartamenti in vendita (meno dell'1% dell'intera provincia) .
NOVITÀ Il risultato che vedi dipende dai dati che siamo riusciti ad estrarre dall'annuncio: ottieni una stima più accuranta di questo immobile, inserendo dati più precisi.
N.B. L'Opinione di Caasa® è un servizio sperimentale realizzato tramite tecniche di Intelligenza Artificiale, fornito senza alcuna garanzia di correttezza e completezza. Leggi il disclaimer o segnalaci un problema.
IMMAGINI
IN SINTESI
PROPOSTO DA:
Asta Chiara
DESCRIZIONE
di recente costruzione con posto auto con garage con cantina in asta giudiziaria di recente costruzione
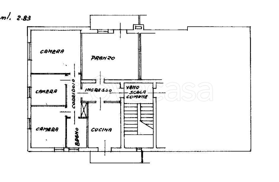
L’appartamento è situato al piano primo del Condominio Stella ed è composto da disbrigo, cucina, soggiorno, tre camere, un bagno ed ha una superficie commerciale di circa 98,51 mq. Il garage e la cantina si trovano al piano terra. Proc. 288/2024, Lot […]
