Valutazione immobiliare indipendente, accurata e gratuita
Terreno edificabile in vendita a Cornuda a 288.450 € (cod.6552c008)
Caasa non ha sufficienti informazioni per commentare il terreno edificabile in vendita a Cornuda - 6552c008.
Analisi immobiliare
I dati in posseso di Caasa per quest'immobile sono insufficienti, inaffidabili o contraddittori per proporre un'analisi attendibile.
Mercato immobiliare a Cornuda
Per quanto riguarda più in generale il comune di Cornuda, sono presenti al momento più di venti annunci per
terreni edificabili in vendita (meno del 5% dell'intera provincia) .
Vedi altre informazioni direttamente su
Mercato-Immobiliare.info
NOVITÀ Il risultato che vedi dipende dai dati che siamo riusciti ad estrarre dall'annuncio: ottieni una stima più accuranta di questo immobile, inserendo dati più precisi.
N.B. L'Opinione di Caasa® è un servizio sperimentale realizzato tramite tecniche di Intelligenza Artificiale, fornito senza alcuna garanzia di correttezza e completezza. Leggi il disclaimer o segnalaci un problema.
IMMAGINI
IN SINTESI
PROPOSTO DA:
asteaffari.com
DESCRIZIONE
da ristrutturare con posto auto con giardino da ristrutturare con termocondizionamento con riscaldamento autonomo in asta giudiziaria senza ascensore
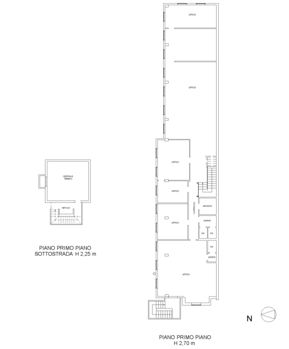
Rif. A.A.83-24 Vendita all'asta - opificio direzionale e commerciale su 2 livelli in data 10 marzo 2026 Descrizione: trattasi di un complesso immobiliare a destinazione produttiva e direzionale, situato in zona industriale periferica a prevalente destinazione artigianale nel comune di Cornuda (TV). L'immobile si compone di un capannone produttivo con annessi uffici e locali direzionali distribuiti su più livelli, oltre a piazzali, parcheggi e spazi verdi pertinenziali. Superficie del Lotto: circa 4.634,00 mq. Superficie Commerciale: circa 1.877,00 m L'immobile viene venduto tramite asta giudiziaria, ed il prezzo indicato si riferisce al prezzo minimo accettato per la partecipazione all'asta. Aste-Affari fornisce un servizio di assistenza e consulenza tecnica, legale, fiscale e finanziaria su acquisti all'asta e affari immobiliari, al fine di rendere più facile e sicuro l'acquisto di un immobile proveniente dal mercato giudiziario oppure da occasioni presenti sul mercato immobiliare. Analisi di fattibilità, tecnica, burocratica, finanziaria, legale, esame problematiche e vincoli, conteggio costi accessori ed occulti, assistenza in tutte le fasi della procedura fino alla consegna delle chiavi dell'immobile. L'acquisto può essere finanziato tramite mutuo, e, ove possibile anche in pre-asta tramite procedura di saldo-stralcio. Prezzo minimo base asta : da euro 288.450,00 Per info aggiuntive, prenotazione visione, consulenza ed assistenza su asta : Studio di Consulenza : "aste-affari.com" Info: 042217801118 - 04221780185 www.aste-affari.com Sei un debitore ? Chiamaci ! Abbiamo soluzioni personalizzate anche per te



