Valutazione immobiliare indipendente, accurata e gratuita
Appartamento in vendita a Cordignano in zona Villa di Villa a 335.000 € (cod.656fc70d)
Caasa non ha sufficienti informazioni per commentare l'appartamento a Cordignano in zona Villa di Villa - 656fc70d.
Analisi immobiliare
I dati in posseso di Caasa per quest'immobile sono insufficienti, inaffidabili o contraddittori per proporre un'analisi attendibile.
Mercato immobiliare a Cordignano
Per quanto riguarda più in generale il comune di Cordignano, sono presenti al momento più di cinquanta annunci per
appartamenti in vendita (meno dell'1% dell'intera provincia) .
Per quanto riguarda la richiesta media in zona Villa di Villa, dove sorge l'appartamento, essa è pari a circa
1.900 €/m² per appartamenti in vendita.
Relativamente alla dinamica dei prezzi, possiamo dire che negli ultimi 6 mesi i prezzi medi in tutto il comune per appartamenti in vendita sono
in forte aumento (+65,85%).
NOVITÀ Il risultato che vedi dipende dai dati che siamo riusciti ad estrarre dall'annuncio: ottieni una stima più accuranta di questo immobile, inserendo dati più precisi.
N.B. L'Opinione di Caasa® è un servizio sperimentale realizzato tramite tecniche di Intelligenza Artificiale, fornito senza alcuna garanzia di correttezza e completezza. Leggi il disclaimer o segnalaci un problema.
IMMAGINI
IN SINTESI
PROPOSTO DA:
CUORE DI CASA
DESCRIZIONE
di nuova costruzione con cantina con terrazza con giardino con termocondizionamento di nuova costruzione
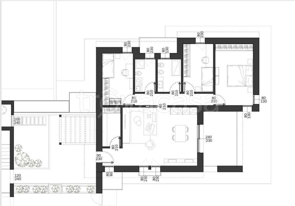
A Villa di Villa, Cordignano, proponiamo in vendita un appartamento trilocale di nuova realizzazione, inserito in un contesto moderno ed elegante, progettato per garantire comfort abitativo e alte prestazioni energetiche. L’abitazione nasce con una distribuzione degli spazi pensata per essere pratica, fluida e attuale. La zona giorno è un open space luminoso, dove area living e zona pranzo convivono in modo naturale. Le ampie vetrate amplificano la luce e accompagnano verso il terrazzo, creando una continuità tra interno ed esterno che rende lo spazio ancora più vivibile. La zona notte è ben organizzata e riservata: tre camere da letto, con una matrimoniale di dimensioni generose e due camere singole perfette come stanze per i figli, studio professionale o spazio multifunzione, a seconda delle esigenze. I doppi servizi, entrambi finestrati, assicurano comfort quotidiano e funzionalità, affiancati da una comoda zona lavanderia/ripostiglio integrata con intelligenza negli spazi. L’appartamento fa parte di una nuova costruzione con finiture di pregio personalizzabili e impianti di ultima generazione. La il riscaldamento a pavimento, la pompa di calore, fotovoltaico e VMC puntuali (ricambio d'aria), raccontano una casa pensata per durare nel tempo e ridurre i consumi. All’esterno, una loggia abitabile offre uno spazio ideale per pranzi all’aperto, momenti di relax e per godere della vista aperta sulle colline circostanti. Vivere a Villa di Villa significa scegliere la tranquillità senza rinunciare alla comodità: Conegliano, sacile e Vittorio Veneto sono raggiungibili in pochi minuti, restando inseriti in un contesto residenziale ordinato ed esclusivo. Rif. V001571 Le immagini presenti in questo annuncio hanno il solo scopo di illustrare il potenziale estetico dell'immobile in costruzione. Non costituiscono rappresentazione fotografica della realtà, in quanto l'unità abitativa è di nuova realizzazione. Per tutelare la privacy del proprietario, l’indirizzo indicato potrebbe non corrispondere esattamente alla p[…]

