Valutazione immobiliare indipendente, accurata e gratuita
Casa indipendente in vendita a Conegliano a 450.000 € (cod.6517a2bc)
Caasa non ha sufficienti informazioni per commentare la casa indipendente in vendita a Conegliano - 6517a2bc.
Analisi immobiliare
I dati in posseso di Caasa per quest'immobile sono insufficienti, inaffidabili o contraddittori per proporre un'analisi attendibile.
Mercato immobiliare a Conegliano
Per quanto riguarda più in generale la città di Conegliano, sono presenti al momento quasi 500 annunci per
case indipendenti in vendita (meno del 5% dell'intera provincia)
e il maggior numero di annunci per questa tipologia sono relativi alla zona di Campolongo.
Per quanto riguarda la dinamica dei prezzi, negli ultimi 6 mesi i prezzi medi in tutta la città per case indipendenti in vendita sono
in sostanziale aumento (+7,24%).
NOVITÀ Il risultato che vedi dipende dai dati che siamo riusciti ad estrarre dall'annuncio: ottieni una stima più accuranta di questo immobile, inserendo dati più precisi.
N.B. L'Opinione di Caasa® è un servizio sperimentale realizzato tramite tecniche di Intelligenza Artificiale, fornito senza alcuna garanzia di correttezza e completezza. Leggi il disclaimer o segnalaci un problema.
IMMAGINI
IN SINTESI
PROPOSTO DA:
AGENZIA IMMOBILIARE LEONARDO S.r.l.s.
DESCRIZIONE
di nuova costruzione con posto auto con garage con terrazza con cantina con giardino con termocondizionamento di nuova costruzione
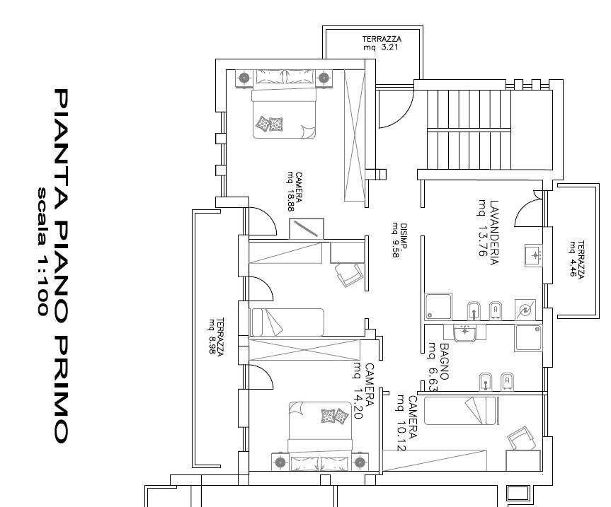
Zona altamente tranquilla , servita da scuole e mezzi , distante pochi minuti dal centro di Conegliano. Di imminente realizzo con consegna prevista per settembre 2026, porzione di casa su due livelli fuori terra, di circa 190 mq e 300 mq di giardino che permette il realizzo di una pompeiana per godersi l'esterno. L’immobile si compone di: ingresso, disimpegno, soggiorno e cucina di 56 mq. La disposizione permette di realizzare una cucina separata. Sempre al piano terra: primo bagno con doccia di 7 mq, un ripostiglio e un garage chiuso con basculante di 22 mq. In aggiunta, altri due posti auto in corte di proprietà. Attraverso una scala comoda si accede alla zona notte, composta da: •camera matrimoniale con cabina armadio di 28 mq •seconda camera matrimoniale di 15 mq con terrazza di 9 mq •terza camera di 15 mq •doppi servizi con doccia, entrambi finestrati •ulteriore camera/studio di 9 mq con terrazza di 5 mq la palazzina sarà rimodulata creando solo 3 unità abitative, pertanto priva di spese condominiali. La classe energetica si ipotizza un A/3-4 da certificare ad intervento concluso . Ogni unità sarà dotata di impianto fotovoltaico da circa 3 kW. Cottura prevista a induzione, cappotto termico da 10 cm su tutta la palazzina, riscaldamento a pavimento con pompa di calore, infissi in triplo vetro basso emissivo, porte interne bianche. Il capitolato, attualmente prevede finiture di livello medio-alto, dando la possibilità agli acquirenti di scegliere la tipologia di legni e ceramiche che andranno a completare le varie stanze. Per chi apprezzasse , grazie ai nostri professionisti, siamo in grado di progettare e allestire su suggerimento del cliente qualsiasi tipo di arredamento con un chiavi in mano


