Valutazione immobiliare indipendente, accurata e gratuita
Ufficio in vendita a Conegliano a 351.000 € (cod.6509e001)
Caasa non ha sufficienti informazioni per commentare l'ufficio in vendita a Conegliano - 6509e001.
Analisi immobiliare
I dati in posseso di Caasa per quest'immobile sono insufficienti, inaffidabili o contraddittori per proporre un'analisi attendibile.
Mercato immobiliare a Conegliano
Per quanto riguarda più in generale la città di Conegliano, sono presenti al momento più di cento annunci per
uffici in vendita (meno del 10% dell'intera provincia)
e il maggior numero di annunci per questa tipologia sono relativi alla zona di Parè.
Relativamente alla dinamica dei prezzi, possiamo dire che negli ultimi 6 mesi i prezzi medi in tutta la città per uffici in vendita sono
in forte aumento (+10,19%).
NOVITÀ Il risultato che vedi dipende dai dati che siamo riusciti ad estrarre dall'annuncio: ottieni una stima più accuranta di questo immobile, inserendo dati più precisi.
N.B. L'Opinione di Caasa® è un servizio sperimentale realizzato tramite tecniche di Intelligenza Artificiale, fornito senza alcuna garanzia di correttezza e completezza. Leggi il disclaimer o segnalaci un problema.
IMMAGINI
IN SINTESI
PROPOSTO DA:
asteaffari.com
DESCRIZIONE
da ristrutturare con cantina con giardino con termocondizionamento da ristrutturare con riscaldamento autonomo in asta giudiziaria senza ascensore
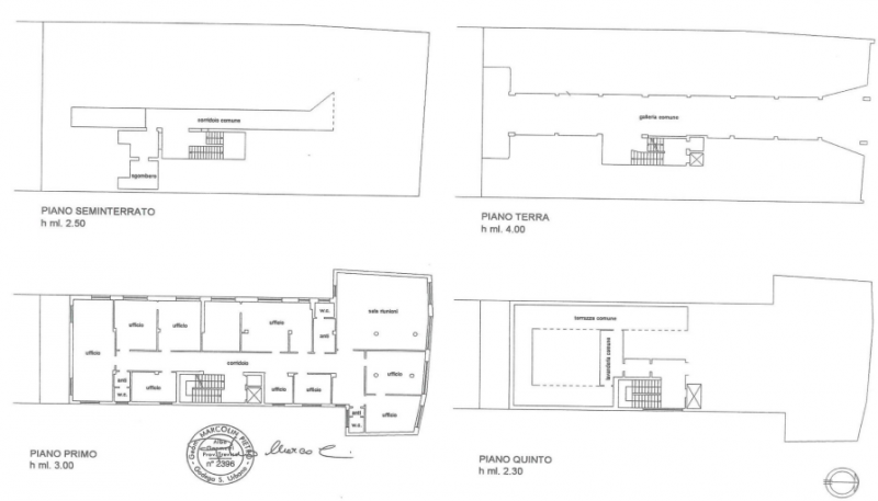
Rif. A.A.5-25 Vendita all'asta - ufficio al 2° piano in data 18 dicembre 2025 Descrizione: trattasi di un'unità immobiliare, con destinazione direzionale, che si sviluppa su un unico livello al 2° piano del condominio denominato 'Galleria Centro Affari e Commercio', in zona centrale del Comune di Conegliano (TV), per una superficie di mq 376,00 mq, oltre ad un vano accessorio adibito a ripostiglio collocato al piano interrato di mq 10,00. L'unità immobiliare è composta da un ingresso, corridoio di collegamento ai vari uffici, 10 stanze e tre servizi igienici per un totale di superficie commerciale di 381,00 mq. Offerta per asta : da euro 351.000,00 L'immobile viene venduto tramite asta giudiziaria, ed il prezzo indicato si riferisce al prezzo minimo accettato per la partecipazione all'asta. Aste-Affari fornisce un servizio di assistenza e consulenza tecnica, legale, fiscale e finanziaria su acquisti all'asta e affari immobiliari, al fine di rendere più facile e sicuro l'acquisto di un immobile proveniente dal mercato giudiziario oppure da occasioni presenti sul mercato immobiliare. Analisi di fattibilità, tecnica, burocratica, finanziaria, legale, esame problematiche e vincoli, conteggio costi accessori ed occulti, assistenza in tutte le fasi della procedura fino alla consegna delle chiavi dell'immobile. L'acquisto può essere finanziato tramite mutuo, e, ove possibile anche in pre-asta tramite procedura di saldo-stralcio. Per info aggiuntive, prenotazione visione, consulenza ed assistenza su asta : Studio di Consulenza : "aste-affari.com" info: 04221781118 04221780185 www.aste-affari.com Sei un debitore ? Chiamaci ! Abbiamo soluzioni personalizzate anche per te




