Valutazione immobiliare indipendente, accurata e gratuita
Appartamento in vendita a Conegliano a 440.000 € (cod.64ae2818)
Caasa non ha sufficienti informazioni per commentare l'appartamento in vendita a Conegliano - 64ae2818.
Analisi immobiliare
I dati in posseso di Caasa per quest'immobile sono insufficienti, inaffidabili o contraddittori per proporre un'analisi attendibile.
Mercato immobiliare a Conegliano
Per quanto riguarda più in generale la città di Conegliano, sono presenti al momento oltre 500 annunci per
appartamenti in vendita (meno del 10% dell'intera provincia)
e il maggior numero di annunci per questa tipologia sono relativi alla zona di Campolongo.
Per quanto riguarda la dinamica dei prezzi, negli ultimi 6 mesi i prezzi medi in tutta la città per appartamenti in vendita sono
in aumento (+3,26%).
NOVITÀ Il risultato che vedi dipende dai dati che siamo riusciti ad estrarre dall'annuncio: ottieni una stima più accuranta di questo immobile, inserendo dati più precisi.
N.B. L'Opinione di Caasa® è un servizio sperimentale realizzato tramite tecniche di Intelligenza Artificiale, fornito senza alcuna garanzia di correttezza e completezza. Leggi il disclaimer o segnalaci un problema.
IMMAGINI
IN SINTESI
PROPOSTO DA:
A. M.
DESCRIZIONE
di nuova costruzione con posto auto con garage con terrazza di nuova costruzione
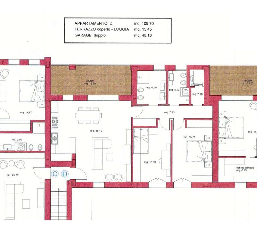
In vendita a Conegliano, in una delle zone più richieste, ULTIMI due ATTICI DI NUOVA COSTRUZIONE. Inizio lavori ottobre 2025 consegna ottobre 2026. Progetto molto bello, cinque appartamenti in tutto senza spese di condominio. Finiture di pregio. Ultimi due attici disponibili: uno (C) di 130 mq con terrazza coperta di 41 mq e garage doppio di 52,60 mq il secondo (D) di 142 mq con due terrazze coperte per un totale di 41 mq e garage doppio di 46,40 mq. Richiesta economica del 130 mq € 440.000 trattabile. Referente Claudio 3472204746

