Valutazione immobiliare indipendente, accurata e gratuita
Casa indipendente in vendita a Castelfranco Veneto a 210.000 € (cod.652c9ba1)
Caasa non ha sufficienti informazioni per commentare la casa indipendente in vendita a Castelfranco Veneto - 652c9ba1.
Analisi immobiliare
I dati in posseso di Caasa per quest'immobile sono insufficienti, inaffidabili o contraddittori per proporre un'analisi attendibile.
Mercato immobiliare a Castelfranco Veneto
Per quanto riguarda più in generale la città di Castelfranco Veneto, sono presenti al momento quasi 500 annunci per
case indipendenti in vendita (meno del 5% dell'intera provincia)
e il maggior numero di annunci per questa tipologia sono relativi alla zona di Salvarosa.
Relativamente alla dinamica dei prezzi, possiamo dire che negli ultimi 6 mesi i prezzi medi in tutta la città per case indipendenti in vendita sono
sostanzialmente stabili (+0,86%).
NOVITÀ Il risultato che vedi dipende dai dati che siamo riusciti ad estrarre dall'annuncio: ottieni una stima più accuranta di questo immobile, inserendo dati più precisi.
N.B. L'Opinione di Caasa® è un servizio sperimentale realizzato tramite tecniche di Intelligenza Artificiale, fornito senza alcuna garanzia di correttezza e completezza. Leggi il disclaimer o segnalaci un problema.
IMMAGINI
IN SINTESI
PROPOSTO DA:
Sinergia Srl - Immobili per professione
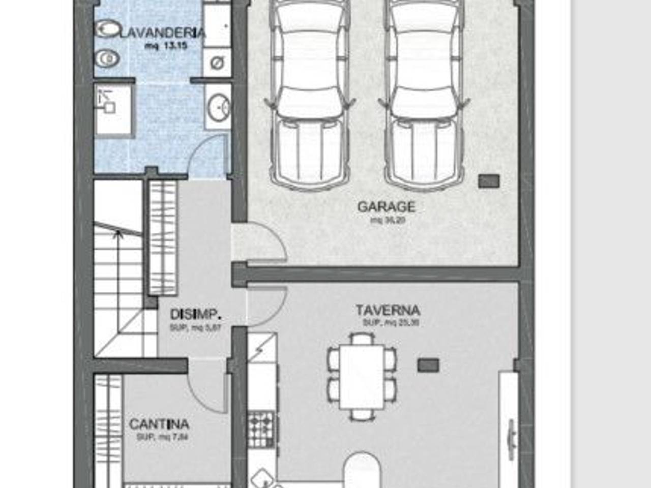
DESCRIZIONE
di nuova costruzione con posto auto con garage con terrazza con giardino di nuova costruzione con angolo cottura
SAN FLORIANO: SI VENDE PORZIONE LATERALE DI VILLA TRIFAMILIARE, disposte su tre piani, (interrato-terra e primo) centrali al paese, comoda ai servizi principali. E' composta da piano interrato che comprende doppio garage, stanza pluriuso di oltre 35mq. lavanderia e bagno. Al piano terra e primo ampio soggiorno-angolo cottura di oltre 40mq e bagno di servizio. Al primo piano camera matrimoniale, camera doppia e camera singola. Terrazza lungo la parete del fabbricato. Giardino privato su entrambe. La porzione laterale. viene consegnata al grezzo avanzato (con scuri e finiture esterne) oppure "chiavi in mano". Per maggiori dettagli 349. 6602724 o telefonare allo 0423. 434009. SINERGIA POSITIVA è un marchio del gruppo SINERGIA srl agenzie immobiliari


