Valutazione immobiliare indipendente, accurata e gratuita
Ufficio in affitto a Castelfranco Veneto a 1.600 € mese (cod.6575e4d9)
Caasa non ha sufficienti informazioni per commentare l'ufficio in affitto a Castelfranco Veneto - 6575e4d9.
Analisi immobiliare
I dati in posseso di Caasa per quest'immobile sono insufficienti, inaffidabili o contraddittori per proporre un'analisi attendibile.
Mercato immobiliare a Castelfranco Veneto
Per quanto riguarda più in generale la città di Castelfranco Veneto, sono presenti al momento circa cento annunci per
uffici in affitto (meno del 10% dell'intera provincia)
e il maggior numero di annunci per questa tipologia sono relativi alla zona di Salvarosa.
Relativamente alla dinamica dei prezzi, possiamo dire che negli ultimi 6 mesi i prezzi medi in tutta la città per uffici in affitto sono
sostanzialmente stabili (-0,59%).
NOVITÀ Il risultato che vedi dipende dai dati che siamo riusciti ad estrarre dall'annuncio: ottieni una stima più accuranta di questo immobile, inserendo dati più precisi.
N.B. L'Opinione di Caasa® è un servizio sperimentale realizzato tramite tecniche di Intelligenza Artificiale, fornito senza alcuna garanzia di correttezza e completezza. Leggi il disclaimer o segnalaci un problema.
IMMAGINI
IN SINTESI
PROPOSTO DA:
Immobiliare San Pio X
DESCRIZIONE
senza ascensore
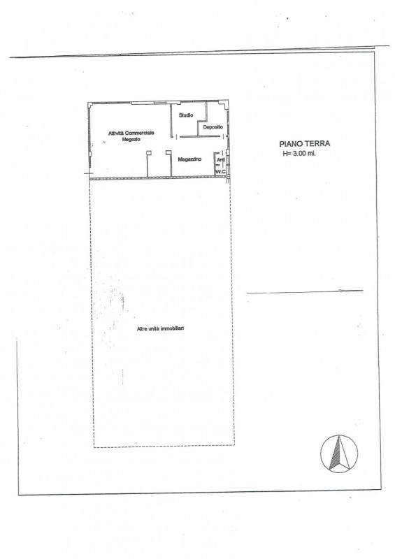
Se stai cercando uno spazio commerciale di alta visibilità, non perdere questa opportunità! Proponiamo la locazione di un negozio situato nella parte sud di Castelfranco Veneto, una zona strategica per il tuo business. ANCHE OTTIMO QUALE UFFICIO Con una superficie generosa di circa 110 mq, questo immobile presenta una pianta pressoché quadrata che consente una facile distribuzione interna degli spazi. Le ampie vetrate garantiscono un'illuminazione naturale ottimale durante tutto l'arco della giornata, creando così un ambiente accogliente sia per i clienti che per i dipendenti. Il negozio è facilmente accessibile grazie al comodo e capiente parcheggio prospicente, ideale per attrarre visitatori e facilitare le operazioni quotidiane del tuo business. La presenza già consolidata di altre attività commerciali nello stesso stabile conferisce ulteriore valore all'immobile; infatti, la sinergia tra diverse realtà imprenditoriali rende questa via particolarmente interessante dal punto di vista commerciale. Inoltre, lo stabile è stato recentemente costruito con materiali moderni ed efficienti dal punto di vista energetico. Questa caratteristica assicura non solo estetica ma anche funzionalità nel lungo termine. Che tu voglia avviare un'attività retail o utilizzare lo spazio come ufficio professionale, questo locale rappresenta la scelta perfetta! Non lasciarti sfuggire questa occasione unica! Contatta subito l'agenzia riferimento per maggiori informazioni o per organizzare una visita. 3337402314 - 0423 420365




