Valutazione immobiliare indipendente, accurata e gratuita
L'Opinione di Caasa® per la casa indipendente in vendita a Casale sul Sile a 421.000 € (cod.657d0149)
Secondo Caasa, per la casa indipendente in vendita a Casale sul Sile, la richiesta di 421.000 € è significativamente svantaggiosa rispetto agli annunci simili.
Analisi immobiliare
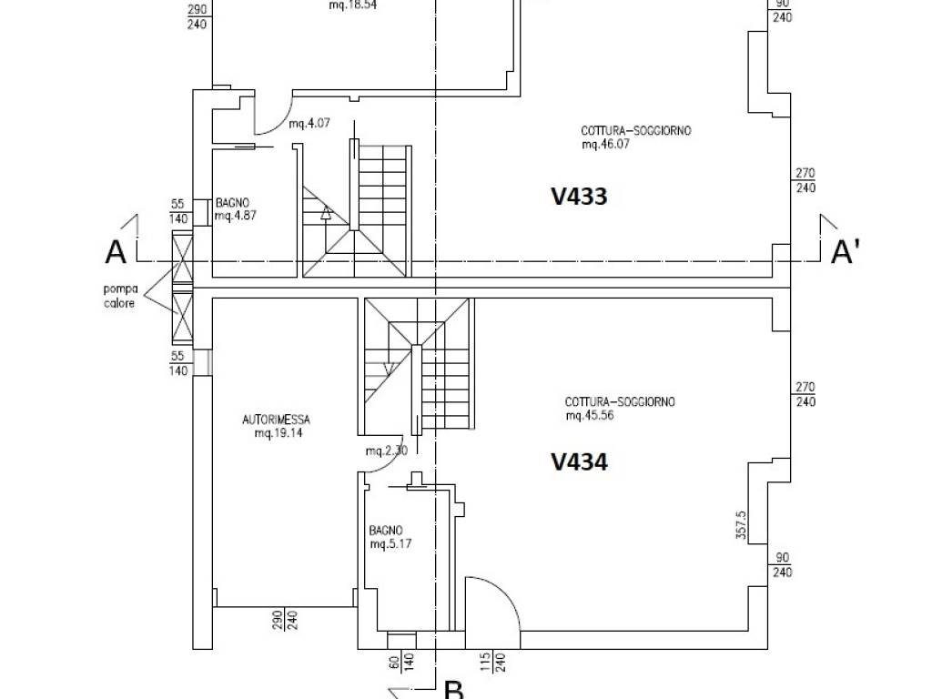
La casa indipendente, situata nella zona OMI B1, è proposta in vendita a
421.000 € per una
superficie commerciale di
140 m² e quindi ad un prezzo per metro quadrato pari a
3007 €/m²
.
Tale prezzo
è meno conveniente di quello stimato da Caasa per immobili in vendita simili per tipologia e caratteristiche, presenti nella stessa zona, che è compreso tra
2.118 €/m² e
2.353 €/m².
Presa in considerazione la posizione della casa indipendente sono stati utilizzati come raffronto i valori medi nelle zone limitrofe . Caasa non è stata in grado di determinare la classe energetica, ma ad affinare la stima ha contribuito però anche lo stato dell'immobile (di nuova costruzione). In virtù di queste considerazioni i valori possibili per l'offerta costituiscono un intervallo relativamente ampio.
Mercato immobiliare a Casale sul Sile
Per quanto riguarda più in generale il comune di Casale sul Sile, sono presenti al momento più di 200 annunci per
case indipendenti in vendita (meno del 5% dell'intera provincia)
e il maggior numero di annunci per questa tipologia sono relativi alla zona di Conscio.
Relativamente alla dinamica dei prezzi, possiamo dire che negli ultimi 6 mesi i prezzi medi in tutto il comune per case indipendenti in vendita sono
in forte aumento (+11,75%).
NOVITÀ Il risultato che vedi dipende dai dati che siamo riusciti ad estrarre dall'annuncio: ottieni una stima più accuranta di questo immobile, inserendo dati più precisi.
N.B. L'Opinione di Caasa® è un servizio sperimentale realizzato tramite tecniche di Intelligenza Artificiale, fornito senza alcuna garanzia di correttezza e completezza. Leggi il disclaimer o segnalaci un problema.
IMMAGINI
IN SINTESI
PROPOSTO DA:
AGENZIA IMMOBILIARE INNOVACASA SNC
