Valutazione immobiliare indipendente, accurata e gratuita
Casa indipendente in vendita ad Asolo in zona Villa d'Asolo a 213.300 € (cod.655be376)
Caasa non ha sufficienti informazioni per commentare la casa indipendente ad Asolo in zona Villa d'Asolo - 655be376.
Analisi immobiliare
I dati in posseso di Caasa per quest'immobile sono insufficienti, inaffidabili o contraddittori per proporre un'analisi attendibile.
Mercato immobiliare ad Asolo
Per quanto riguarda più in generale il comune di Asolo, sono presenti al momento più di 150 annunci per
case indipendenti in vendita (meno del 5% dell'intera provincia)
e il maggior numero di annunci per questa tipologia sono relativi proprio alla zona di Villa d'Asolo.
Per quanto riguarda la richiesta media in zona Villa d'Asolo, dove sorge la casa indipendente, essa è pari a circa
1.670 €/m² per case indipendenti in vendita.
Possiamo inoltre considerare che in tutto il comune negli ultimi 6 mesi, i prezzi per case indipendenti in vendita sono
in aumento (+3,49%).
NOVITÀ Il risultato che vedi dipende dai dati che siamo riusciti ad estrarre dall'annuncio: ottieni una stima più accuranta di questo immobile, inserendo dati più precisi.
N.B. L'Opinione di Caasa® è un servizio sperimentale realizzato tramite tecniche di Intelligenza Artificiale, fornito senza alcuna garanzia di correttezza e completezza. Leggi il disclaimer o segnalaci un problema.
IMMAGINI
IN SINTESI
PROPOSTO DA:
Case all'Asta
DESCRIZIONE
di recente costruzione con posto auto con garage con giardino con cantina di recente costruzione in asta giudiziaria
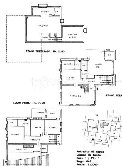
Villino su tre livelli: piano terra, primo e interrato. Composta da soggiorno, cucina, bagno e ripostiglio al piano terra e da tre camere e bagno al piano primo. Autorimessa e cantina. Nessun costo di iscrizione con Case all'Asta - Acquista senza Ris […]
