Valutazione immobiliare indipendente, accurata e gratuita
Casa indipendente in vendita ad Asolo in zona Villa d'Asolo a 600.000 € (cod.6531e47d)
Caasa non ha sufficienti informazioni per commentare la casa indipendente ad Asolo in zona Villa d'Asolo - 6531e47d.
Analisi immobiliare
I dati in posseso di Caasa per quest'immobile sono insufficienti, inaffidabili o contraddittori per proporre un'analisi attendibile.
Mercato immobiliare ad Asolo
Per quanto riguarda più in generale il comune di Asolo, sono presenti al momento più di 150 annunci per
case indipendenti in vendita (meno del 5% dell'intera provincia)
e il maggior numero di annunci per questa tipologia sono relativi proprio alla zona di Villa d'Asolo.
Per quanto riguarda la richiesta media in zona Villa d'Asolo, dove sorge la casa indipendente, essa è pari a circa
1.665 €/m² per case indipendenti in vendita.
Relativamente alla dinamica dei prezzi, possiamo dire che negli ultimi 6 mesi i prezzi medi in tutto il comune per case indipendenti in vendita sono
in debole diminuzione (-2,08%).
NOVITÀ Il risultato che vedi dipende dai dati che siamo riusciti ad estrarre dall'annuncio: ottieni una stima più accuranta di questo immobile, inserendo dati più precisi.
N.B. L'Opinione di Caasa® è un servizio sperimentale realizzato tramite tecniche di Intelligenza Artificiale, fornito senza alcuna garanzia di correttezza e completezza. Leggi il disclaimer o segnalaci un problema.
IMMAGINI
IN SINTESI
PROPOSTO DA:
Affiliato Tecnocasa: STUDIO ASOLO SRL - Tecnocasa
DESCRIZIONE
di recente ristrutturazione con posto auto con garage con giardino con terrazza con cantina di recente ristrutturazione
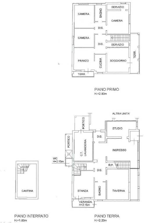
Tecnocasa Asolo propone in esclusiva una prestigiosa villa singola nel cuore del Comune di Asolo. Immersa in un parco privato di circa 2.600 mq, questa elegante residenza si sviluppa su tre livelli per una superficie abitativa di 314 mq, completata da un garage di 53 mq. La villa è stata ristrutturata tra il 2010 e il 2012, con attenzione alla qualità dei materiali, al comfort abitativo e all’efficienza energetica. Al piano terra, l’ingresso conduce a una luminosissima zona living, valorizzata da ampie vetrate che creano continuità tra interno ed esterno. La presenza di una stube e di un importante tavolo in legno conferisce calore e atmosfera esclusiva all’ambiente. La zona giorno comprende uno studio, una cucina principale e una seconda cucina giapponese teppanyaki, ideale per chi ama ricevere ospiti. Dal soggiorno si accede al portico privato, perfetto per pranzi all’aperto o momenti di relax immersi nel verde. Completano il piano un bagno di servizio, una lavanderia e il garage di 53 mq. Il piano primo ospita la zona notte, composta da quattro ampie camere da letto e due bagni eleganti, di cui uno dotato di doccia idromassaggio, per un’esperienza quotidiana di comfort e benessere. Al piano interrato si trovano una cantina vini e una palestra privata, con predisposizione per un ulteriore bagno, ideale per una futura area wellness. L’immobile dispone inoltre di impianto fotovoltaico da 13 kW, che garantisce efficienza energetica e riduzione dei costi di gestione. Una residenza di prestigio, pensata per chi desidera privacy, ampi spazi e comfort di alto livello, a pochi minuti dal centro storico di Asolo. Chiama lo 0423 1859650 Oppure passa a trovarci in via Montello 6, Casella d’Asolo


