Valutazione immobiliare indipendente, accurata e gratuita
Ufficio in affitto ad Asolo a 1.200 € mese (cod.6575e837)
Caasa non ha sufficienti informazioni per commentare l'ufficio in affitto ad Asolo - 6575e837.
Analisi immobiliare
I dati in posseso di Caasa per quest'immobile sono insufficienti, inaffidabili o contraddittori per proporre un'analisi attendibile.
Mercato immobiliare ad Asolo
Per quanto riguarda più in generale il comune di Asolo, sono presenti al momento più di dieci annunci per
uffici in affitto (meno del 5% dell'intera provincia)
e il maggior numero di annunci per questa tipologia sono relativi alla zona di Villa d'Asolo.
NOVITÀ Il risultato che vedi dipende dai dati che siamo riusciti ad estrarre dall'annuncio: ottieni una stima più accuranta di questo immobile, inserendo dati più precisi.
N.B. L'Opinione di Caasa® è un servizio sperimentale realizzato tramite tecniche di Intelligenza Artificiale, fornito senza alcuna garanzia di correttezza e completezza. Leggi il disclaimer o segnalaci un problema.
IMMAGINI
IN SINTESI
PROPOSTO DA:
Agenzia Inmobiliare
DESCRIZIONE
con termocondizionamento con posto auto con garage con riscaldamento autonomo senza ascensore
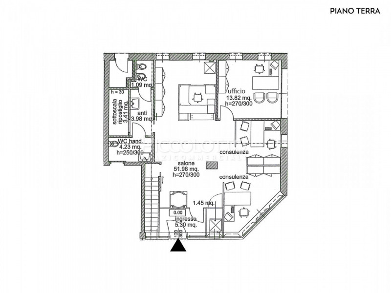
Rif. A4785 - Casella d'Asolo, negozio/ufficio disponibile in affitto, situato in contesto strategico vicino ad attività quali farmacia, bar, supermercato, banca e scuole. Il negozio/ufficio con bagno ha superficie di circa 110 mq, oltre al magazzino con garage al piano interrato di circa 65 mq. L'immobile, disponibile da subito, è servito da comodi parcheggi. Al fine di tutelare la privacy, precisiamo che gli indirizzi presenti negli annunci sono puramente indicativi. SPAZI COMMERCIALI Viale Tiziano 7/A 31011 ASOLO (TV) Tel. +39 0423 55722 www.nuovispazi.com






