Valutazione immobiliare indipendente, accurata e gratuita
Casa indipendente in vendita ad Altivole a 495.000 € (cod.652e363c)
Caasa non ha sufficienti informazioni per commentare la casa indipendente in vendita ad Altivole - 652e363c.
Analisi immobiliare
I dati in posseso di Caasa per quest'immobile sono insufficienti, inaffidabili o contraddittori per proporre un'analisi attendibile.
Mercato immobiliare ad Altivole
Per quanto riguarda più in generale il comune di Altivole, sono presenti al momento più di cinquanta annunci per
case indipendenti in vendita (meno dell'1% dell'intera provincia)
e il maggior numero di annunci per questa tipologia sono relativi alla zona di San Vito.
Per quanto riguarda la dinamica dei prezzi, negli ultimi 6 mesi i prezzi medi in tutto il comune per case indipendenti in vendita sono
in sostanziale calo (-6,68%).
NOVITÀ Il risultato che vedi dipende dai dati che siamo riusciti ad estrarre dall'annuncio: ottieni una stima più accuranta di questo immobile, inserendo dati più precisi.
N.B. L'Opinione di Caasa® è un servizio sperimentale realizzato tramite tecniche di Intelligenza Artificiale, fornito senza alcuna garanzia di correttezza e completezza. Leggi il disclaimer o segnalaci un problema.
IMMAGINI
IN SINTESI
DESCRIZIONE
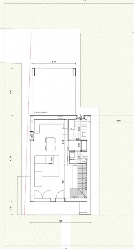
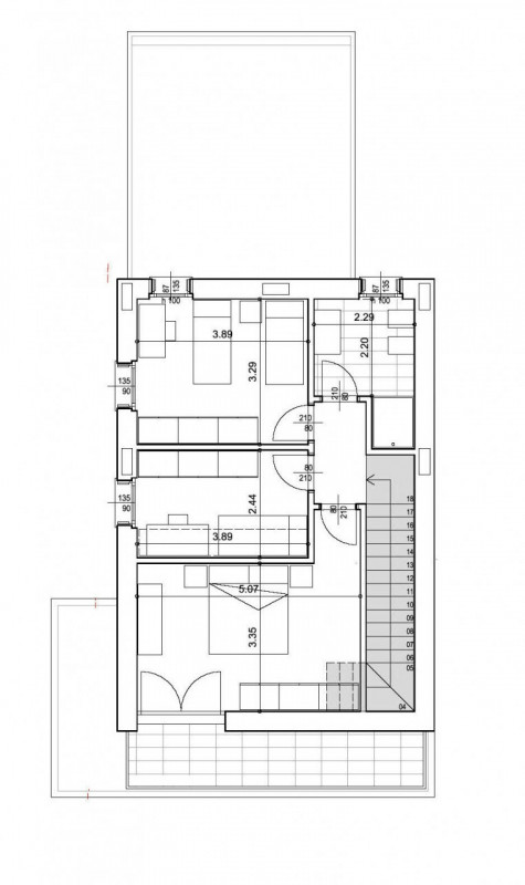
di nuova costruzione con posto auto con garage con termocondizionamento con riscaldamento autonomo di nuova costruzione senza ascensore con angolo cottura
Vendita diretta senza mediazione, di una casa singola di nuova costruzione in centro ad Altivole a ridosso di tutti i servizi. La casa offre ampi e luminosi spazi abitativi ed elevato confort abitativo, prestando particolare attenzione all'efficienza energetica ed all'ambiente. Particolare attenzione è stata posta per l'isolamento del fabbricato, utilizzando triplo vetro per porte e finestre, mentre per il riscaldamento e raffrescamento viene utilizzata una pompa di calore abbinata ad un impianto fotovoltaico. La casa si sviluppa su due piano fuori terra dove troviamo al piano terra un'ampia e luminosa zona giorno a sud di quasi 50 mq., con una grande vetrata scorrevole e porta laterale, ottenendo così una elevata illuminazione naturale, sempre al piano terra troviamo un disimpegno dal quale si accede ad un confortevole ed ampio bagno completo oppure alla lavanderia wc. All'esterno troviamo un giardino di generose dimensioni oltre 400 mq. su lotto di 550mq circa Salendo le scale accediamo al reparto notte composto da tre camere, una matrimoniale una doppia ed una singola, oltre a disimpegno e bagno completo, essendo in progetto è possibile personalizzare spazi interni e finiture su specifiche richieste del cliente. Per qualsiasi informazione non esitate a contattarci. NOTA: Si avvertono i Signori clienti che gli indirizzi inseriti all'interno dell'annuncio sono puramente indicativi e non rispecchiano la realtà. Questa indicazione vuole essere un ausilio nell'indicazione della zona pur rispettando la Privacy dei venditori. Per visionare l'immobile o per ricevere ulteriori informazioni contattateci senza impegno: AGENZIA ASOLANA IMMOBILIARE di Luigi e Moira Piccolotto Viale Tiziano 5/a 31011 - CASELLA D'ASOLO (TV) Tel. + 39 0423 529464 Cell. 347.9411092 Claudio Visita il nostro sito internet: www.asolanaimmobiliare.it Puoi visionare altre proposte di immobili ad uso residenziale, agricolo, industriale-commerciale, direttamente sul nostro sito, troverai inoltre molte altre proposte presso la nostra sede, vie[…]







