Valutazione immobiliare indipendente, accurata e gratuita
Appartamento in vendita a Villanova Marchesana a 22.000 € (cod.65a3597c)
Caasa non ha sufficienti informazioni per commentare l'appartamento in vendita a Villanova Marchesana - 65a3597c.
Analisi immobiliare
I dati in posseso di Caasa per quest'immobile sono insufficienti, inaffidabili o contraddittori per proporre un'analisi attendibile.
Mercato immobiliare a Villanova Marchesana
Per quanto riguarda più in generale il comune di Villanova Marchesana, sono presenti al momento più di dieci annunci per
appartamenti in vendita (meno dell'1% dell'intera provincia) .
Vedi altre informazioni direttamente su
Mercato-Immobiliare.info
NOVITÀ Il risultato che vedi dipende dai dati che siamo riusciti ad estrarre dall'annuncio: ottieni una stima più accuranta di questo immobile, inserendo dati più precisi.
N.B. L'Opinione di Caasa® è un servizio sperimentale realizzato tramite tecniche di Intelligenza Artificiale, fornito senza alcuna garanzia di correttezza e completezza. Leggi il disclaimer o segnalaci un problema.
IMMAGINI
IN SINTESI
PROPOSTO DA:
immobiliare DOMUS trade agency
DESCRIZIONE
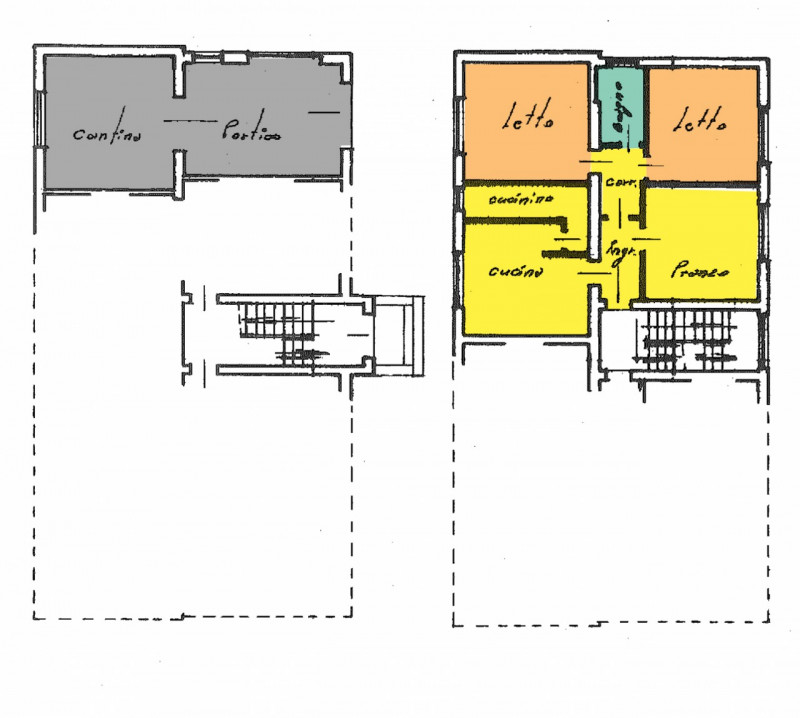
da ristrutturare con posto auto con garage con giardino con cantina da ristrutturare con termocondizionamento con riscaldamento autonomo senza ascensore con angolo cottura
In Comune di Villanova Marchesana (RO) disponiamo di un ampio appartamento di oltre 90 mq. al piano 2° ed ultimo in contesto popolare da riattare, composto da ingresso, soggiorno, sala da pranzo con cucinotto, 2 camere da letto matrimoniali e bagno. Al piano terra vi è un ampio garage con cantina annessa. Prezzo interessante

