Valutazione immobiliare indipendente, accurata e gratuita
Casa indipendente in vendita a Porto Viro a 55.000 € (cod.651ec586)
Caasa non ha sufficienti informazioni per commentare la casa indipendente in vendita a Porto Viro - 651ec586.
Analisi immobiliare
I dati in posseso di Caasa per quest'immobile sono insufficienti, inaffidabili o contraddittori per proporre un'analisi attendibile.
Mercato immobiliare a Porto Viro
Per quanto riguarda più in generale il comune di Porto Viro, sono presenti al momento più di 300 annunci per
case indipendenti in vendita (meno del 10% dell'intera provincia) .
Possiamo inoltre considerare che in tutto il comune negli ultimi 6 mesi, i prezzi per case indipendenti in vendita sono
sostanzialmente stabili (+0,33%).
NOVITÀ Il risultato che vedi dipende dai dati che siamo riusciti ad estrarre dall'annuncio: ottieni una stima più accuranta di questo immobile, inserendo dati più precisi.
N.B. L'Opinione di Caasa® è un servizio sperimentale realizzato tramite tecniche di Intelligenza Artificiale, fornito senza alcuna garanzia di correttezza e completezza. Leggi il disclaimer o segnalaci un problema.
IMMAGINI
IN SINTESI
DESCRIZIONE
di recente ristrutturazione con giardino con cantina di recente ristrutturazione
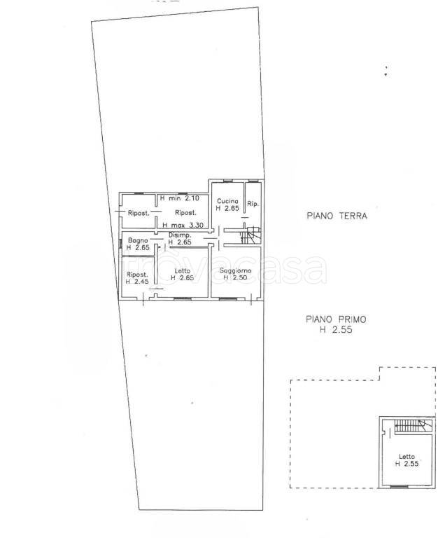
Immobile in vendita: Opportunità di ristrutturazione Centro di Donada** Siamo lieti di presentare un'opportunità unica per acquisire una proprietà situata a soli 300 metri dal centro della località di Donada. Si tratta di un progetto di ristrutturazione completa che comprende un edificio rustico e un lotto edificabile adiacente, inclusi nel prezzo di acquisto. ### Dettagli principali: - **Superficie totale del terreno**: 1.425 metri quadrati - **Indice di edificabilità**: 0,70 - **Superficie massima edificabile**: Fino a 340 metri quadrati, distribuiti su due piani (170 metri quadrati per piano). - **Potenziale di investimento**: Lo spazio potrebbe essere trasformato in quattro appartamenti, ciascuno di 85 metri quadrati. ### Disposizione attuale dell'immobile: - **Piano terra**: - Soggiorno - Cucina - Ripostiglio - Corridoio - Bagno - Piccola camera da letto/ripostiglio - Ulteriore ripostiglio esterno accessibile dall'esterno - **Primo piano**: - Camera da letto principale ### Ulteriori vantaggi: Questa proprietà è idonea per vari incentivi fiscali destinati ai progetti di ristrutturazione, rendendola un'opzione di investimento ancora più interessante. Che stiate cercando di intraprendere un progetto di ristrutturazione o di sviluppare nuove unità residenziali, questa proprietà offre una base promettente con ampio potenziale. Non perdete l'opportunità di investire in una posizione privilegiata


