Valutazione immobiliare indipendente, accurata e gratuita
Negozio in vendita ad Occhiobello in zona Santa Maria Maddalena a 330.000 € (cod.65193e62)
Caasa non ha sufficienti informazioni per commentare il negozio ad Occhiobello Santa Maria Maddalena - 65193e62.
Analisi immobiliare
I dati in posseso di Caasa per quest'immobile sono insufficienti, inaffidabili o contraddittori per proporre un'analisi attendibile.
Mercato immobiliare ad Occhiobello
Per quanto riguarda più in generale il comune di Occhiobello, sono presenti al momento più di cinquanta annunci per
negozi in vendita (meno del 10% dell'intera provincia)
e il maggior numero di annunci per questa tipologia sono relativi proprio alla zona di Santa Maria Maddalena.
Vedi altre informazioni direttamente su
Mercato-Immobiliare.info
NOVITÀ Il risultato che vedi dipende dai dati che siamo riusciti ad estrarre dall'annuncio: ottieni una stima più accuranta di questo immobile, inserendo dati più precisi.
N.B. L'Opinione di Caasa® è un servizio sperimentale realizzato tramite tecniche di Intelligenza Artificiale, fornito senza alcuna garanzia di correttezza e completezza. Leggi il disclaimer o segnalaci un problema.
IMMAGINI
IN SINTESI
DESCRIZIONE
di recente costruzione con posto auto con garage con terrazza con termocondizionamento di recente costruzione
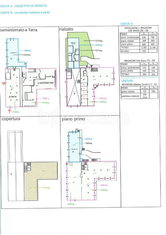
Santa Maria Maddalena, a brevissima distanza da Ferrara ed in posizione comoda per raggiungere la città di Rovigo, proponiamo in vendita capannone commerciale di quasi 2.500 mq. (accatastato D/8) ideale per attività espositiva, organizzato internamente su due livelli oltre a piano interrato. Dotato di grandi altezze di circa 4 mt. e due portoni di accesso scorrevoli, l'immobile si presenta in ottimo stato di manutenzione. Servito da capiente montacarichi (2.30 X 3.50) con entrata/uscita su tutti i livelli interni, impianto di riscaldamento canalizzato ad aria e struttura a pilastri in cemento armato; impreziosito da ampie vetrate antisfondamento al piano rialzato e primo protette da frangisole in alluminio. Impianto elettrico e di riscaldamento a norma con differenziali su ogni piano. Sempre al piano rialzato dispone di cinque uffici con pareti vetrate già approntati e pronti all'uso. La copertura piana di circa 350 mq. in ottimo stato, funge anche da grande terrazza. Pavimentazione in gres su tutti i piani, sulla quale è stato sovrapposto laminato a doghe effetto legno; tramezzature interne in cartongesso che possono essere rimosse a seconda delle esigenze. Sul fronte del fabbricato, un ampio piazzale carrabile con pavimentazione in autobloccante (circa 20 posti auto). L'immobile con la sua vasta metratura si presta a diversi tipi di utilizzi: - Poliambulatori - Cambio destinazione d'uso in residenziale per realizzazione di più unità abitative Prezzo d'occasione per coloro che sono alla ricerca di un grande spazio espositivo all'interno di centro abitato e comodissimo alle principali vie di comunicazione; posizione invidiabile con ampia visibilità, in strada di forte passaggio. L'immobile è disponibile anche alla locazione (3.000€/mese). Inoltre, sempre della stessa proprietà adiacente il capannone, vi è la possibilità di acquisto con prezzo a parte di un' abitazione residenziale di circa 180 mq, distribuita tutta al piano rialzato con scoperto privato. Pertinenziale alla casa un magazzino di oltre 160 m[…]

