Valutazione immobiliare indipendente, accurata e gratuita
Appartamento in vendita ad Ariano nel Polesine a 55.000 € (cod.659c585d)
Caasa non ha sufficienti informazioni per commentare l'appartamento in vendita ad Ariano nel Polesine - 659c585d.
Analisi immobiliare
I dati in posseso di Caasa per quest'immobile sono insufficienti, inaffidabili o contraddittori per proporre un'analisi attendibile.
Mercato immobiliare ad Ariano nel Polesine
Per quanto riguarda più in generale il comune di Ariano nel Polesine, sono presenti al momento più di cinquanta annunci per
appartamenti in vendita (meno del 5% dell'intera provincia) .
Relativamente alla dinamica dei prezzi, possiamo dire che negli ultimi 6 mesi i prezzi medi in tutto il comune per appartamenti in vendita sono
sostanzialmente stabili (+0,42%).
NOVITÀ Il risultato che vedi dipende dai dati che siamo riusciti ad estrarre dall'annuncio: ottieni una stima più accuranta di questo immobile, inserendo dati più precisi.
N.B. L'Opinione di Caasa® è un servizio sperimentale realizzato tramite tecniche di Intelligenza Artificiale, fornito senza alcuna garanzia di correttezza e completezza. Leggi il disclaimer o segnalaci un problema.
IMMAGINI
IN SINTESI
PROPOSTO DA:
LIDI MARE S.A.S
DESCRIZIONE
edificio storico
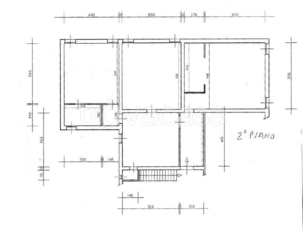
In centro paese di Ariano nel Polesine (RO), proponiamo in vendita appartamento in verticale, ubicato in palazzo storico posizionato sulla principale piazza del paese, ovvero Piazza Garibaldi, risalente al Ducato degli Estensi. Per la sua particolarità questo edificio è stato studio di storici, letterati ed architetti che nè hanno datato la costruzione al probabile inizio rinascimentale del 1400, tanto che un ampio capitolo è stato dedicato a questo edificio, ricordato ancora oggi come Palazzo Zadra, all'interno del libro " STORIA DEL COMUNE DI ARIANO POLESINE" di Gustavo Cristi. Di storia nè trasuda tutto il palazzo, tanto che una volta varcato il portone principale che apre la vista all'androne principale, ci si sente subito proiettati nel passato, come un grande tuffo nel periodo rinascimentale e, lasciandosi andare all'immaginazione, si può ancora oggi sentire il vocio nelle strada dei mercanti intenti a vendere le loro merci ai viandati, agli artigiani, manovali e fabbri che con il loro incessante lavoro battevano il ferro sull'incudine per dare vita agli utensili più disparati od ancora sentire il profumo dei cucinieri di strada prepare le pietanze di frumento, legumi e carni cucinate sul fuoco dove l'odore profondeva nei vicoli della vociante borgata. Ecco quindi che quando si parla di immobili all'interno del Palazzo Zadra se nè parla come di immobili dal valore storico. Nello specifico l'immobile oggetto oggi di vendita è un appartamento ubicato in verticale al secondo ed ultimo piano, con affaccio angolare su Piazza Garibaldi: in verticale perchè composto da un appartamento e dalla sovrastante mansarda. L'appartamento di ampia metratura è composto da quattro grandi stanze, oltre al corridoio di ingresso, alla cucina ed al bagno; tutte le stanze sono illuminate dalle finestre che affacciano sulla aperta Piazza Garibaldi, con esposizione a Nord / Est / Sud . Il piano sovrastante, mai modificato nel tempo, è composto da una grande mansarda divisa in vani con soffitti dotati di travi a vista, mentre[…]

