Valutazione immobiliare indipendente, accurata e gratuita
Negozio in affitto a Vigonza in zona Perarolo a 3.500 € mese (cod.6575e7cb)
Caasa non ha sufficienti informazioni per commentare il negozio in affitto a Vigonza in zona Perarolo - 6575e7cb.
Analisi immobiliare
I dati in posseso di Caasa per quest'immobile sono insufficienti, inaffidabili o contraddittori per proporre un'analisi attendibile.
Mercato immobiliare a Vigonza
Per quanto riguarda più in generale la città di Vigonza, sono presenti al momento più di venti annunci per
negozi in affitto (meno del 5% dell'intera provincia)
e il maggior numero di annunci per questa tipologia sono relativi proprio alla zona di Perarolo.
Vedi altre informazioni direttamente su
Mercato-Immobiliare.info
NOVITÀ Il risultato che vedi dipende dai dati che siamo riusciti ad estrarre dall'annuncio: ottieni una stima più accuranta di questo immobile, inserendo dati più precisi.
N.B. L'Opinione di Caasa® è un servizio sperimentale realizzato tramite tecniche di Intelligenza Artificiale, fornito senza alcuna garanzia di correttezza e completezza. Leggi il disclaimer o segnalaci un problema.
IMMAGINI
IN SINTESI
DESCRIZIONE
di recente costruzione con termocondizionamento con riscaldamento autonomo senza ascensore di recente costruzione
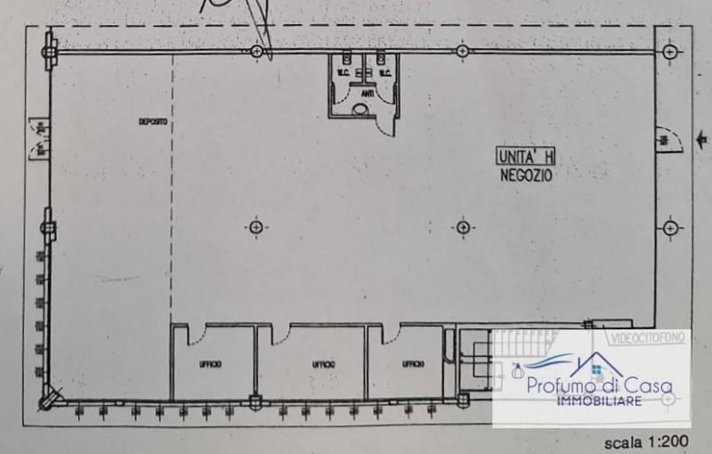
VIGONZA LOC. CAPRICCIO - In uno stabile moderno vicino ai principali collegamenti e servizi, proponiamo splendido negozio di 370 metri quadri in locazione, sviluppato interamente al piano terra e con quattro vetrine su strada principale di forte passaggio. Area esterna con circa 3000 metri quadri di parcheggio. Si sviluppa in un unico ambiente openspace e personalizzabile in base alle proprie necessità, con tre locali aggiuntivi ad uso ufficio e due bagni con antibagno. La soluzione offre un'ottima visibilità per la posizione e confina con molte altre attività commerciali ad elevata frequentazione già presenti nello stabile. Canone mensile Euro 3.500,00 + IVA. Spese condominiali Euro 150 al mese. PAESI LIMITROFI PONTE DI BRENTA, VIGONZA, PERAROLO, BUSA, NOVENTA PADOVANA, STRA, FIESSO D'ARTICO





