Valutazione immobiliare indipendente, accurata e gratuita
Negozio in vendita a Stanghella a 299.000 € (cod.6554c46f)
Caasa non ha sufficienti informazioni per commentare il negozio in vendita a Stanghella - 6554c46f.
Analisi immobiliare
I dati in posseso di Caasa per quest'immobile sono insufficienti, inaffidabili o contraddittori per proporre un'analisi attendibile.
Mercato immobiliare a Stanghella
Per quanto riguarda più in generale il comune di Stanghella, sono presenti al momento meno di dieci annunci per
negozi in vendita (meno dell'1% dell'intera provincia) .
Vedi altre informazioni direttamente su
Mercato-Immobiliare.info
NOVITÀ Il risultato che vedi dipende dai dati che siamo riusciti ad estrarre dall'annuncio: ottieni una stima più accuranta di questo immobile, inserendo dati più precisi.
N.B. L'Opinione di Caasa® è un servizio sperimentale realizzato tramite tecniche di Intelligenza Artificiale, fornito senza alcuna garanzia di correttezza e completezza. Leggi il disclaimer o segnalaci un problema.
IMMAGINI
IN SINTESI
DESCRIZIONE
con cantina edificio storico
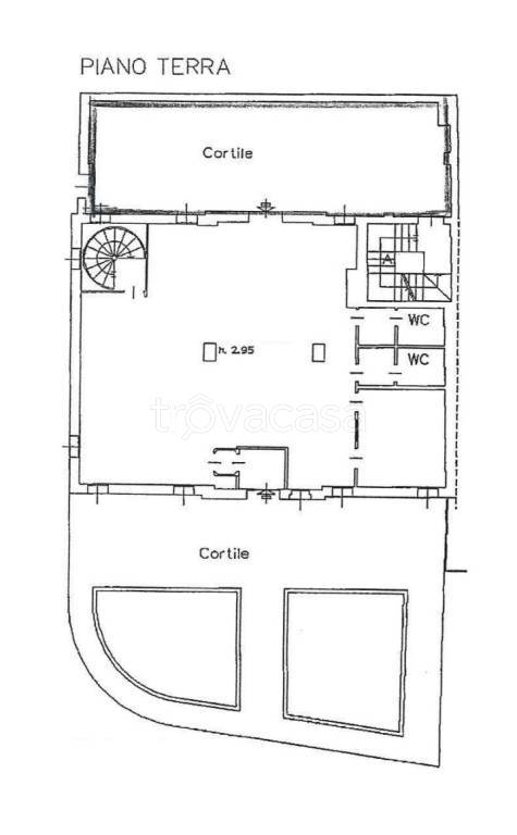
Ampio locale commerciale di circa 320 mq in stabile d'epoca, situato in posizione centrale su Via Nazionale 64 a Stanghella (PD), strada ad alto traffico veicolare e pedonale. Ideale per retail, uffici o attività di servizi grazie alle dimensioni generose e alla visibilità fronte strada principale. L'immobile è composto dall'intero pianto terra, cantina al piano interrato, Ufficio al piano primo e ulteriore spazio molto ampio al piano secondo. Codice gestionale: 012360_26_C112IC

