Valutazione immobiliare indipendente, accurata e gratuita
L'Opinione di Caasa® per l'appartamento in vendita a Solesino a 89.000 € (cod.65193ff5)
Secondo Caasa, per l'appartamento in vendita a Solesino, la richiesta di 89.000 € è significativamente svantaggiosa rispetto agli annunci simili.
Analisi immobiliare
L'appartamento è proposto in vendita (da BARIN AGENZIA IMMOBILIARE) a
89.000 € per una
superficie commerciale di
53 m² e quindi ad un prezzo per metro quadrato pari a
1679 €/m²
.
Tale prezzo
è meno conveniente di quello stimato da Caasa per immobili in vendita simili per tipologia e caratteristiche, che è compreso tra
1.115 €/m² e
1.253 €/m².
E' stato possibile utilizzare in raffronto i soli valori medi cittadini. Caasa non è stata infatti in grado di determinare in modo affidabile la posizione né la classe energetica dell'immobile. Ad affinare la stima hanno contribuito però anche lo stato dell'immobile (di recente costruzione) e la presenza di alcune caratteristiche significative come il garage o la disponibilità di una cantina. Per queste considerazioni i valori considerati accettabili per l'offerta economica devono costituire un intervallo adeguatamente ampio.
Mercato immobiliare a Solesino
Per quanto riguarda più in generale il comune di Solesino, sono presenti al momento più di cinquanta annunci per
appartamenti in vendita (meno dell'1% dell'intera provincia) .
Relativamente alla dinamica dei prezzi, possiamo dire che negli ultimi 6 mesi i prezzi medi in tutto il comune per appartamenti in vendita sono
in sostanziale aumento (+6,76%).
NOVITÀ Il risultato che vedi dipende dai dati che siamo riusciti ad estrarre dall'annuncio: ottieni una stima più accuranta di questo immobile, inserendo dati più precisi.
N.B. L'Opinione di Caasa® è un servizio sperimentale realizzato tramite tecniche di Intelligenza Artificiale, fornito senza alcuna garanzia di correttezza e completezza. Leggi il disclaimer o segnalaci un problema.
IMMAGINI
IN SINTESI
DESCRIZIONE
di recente costruzione con posto auto con garage con cantina di recente costruzione con angolo cottura
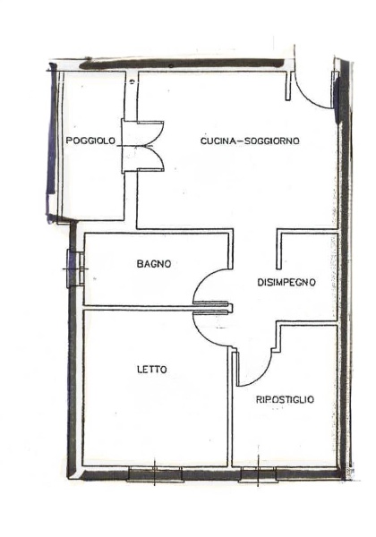
In un piccolo contesto residenziale del 2008, composto da sei unità abitative e privo di amministratore condominiale, proponiamo due accoglienti appartamenti trilocali situati nel cuore di Solesino. Entrambe le unità sono attualmente locate, un'ottima opportunità per chi cerca un investimento sicuro e già a reddito, in una posizione comoda ai servizi. Gli appartamenti, in ottime condizioni, si raggiungono tramite una scala esterna comune che conduce direttamente all'ingresso. Gli spazi interni sono ben distribuiti: una luminosa zona giorno con angolo cottura, una camera matrimoniale, una camera singola e un bagno ed un comodo ripostiglio dove mettere la lavatrice. Ogni appartamento ha un garage privato, pratico e facilmente accessibile. Uno dei due appartamenti si libererà dalla locazione a maggio, offrendo così anche la possibilità di un utilizzo diretto a breve termine. Un'occasione interessante per investitori o privati che cercano una soluzione curata, in una zona tranquilla ma centralissima. Classe Energetica: E

