Valutazione immobiliare indipendente, accurata e gratuita
Appartamento in vendita a Selvazzano Dentro a 365.000 € (cod.6575e6f4)
Caasa non ha sufficienti informazioni per commentare l'appartamento in vendita a Selvazzano Dentro - 6575e6f4.
Analisi immobiliare
I dati in posseso di Caasa per quest'immobile sono insufficienti, inaffidabili o contraddittori per proporre un'analisi attendibile.
Mercato immobiliare a Selvazzano Dentro
Per quanto riguarda più in generale la città di Selvazzano Dentro, sono presenti al momento più di 300 annunci per
appartamenti in vendita (meno del 5% dell'intera provincia)
e il maggior numero di annunci per questa tipologia sono relativi alla zona di Caselle.
Per quanto riguarda la dinamica dei prezzi, negli ultimi 6 mesi i prezzi medi in tutta la città per appartamenti in vendita sono
in sostanziale aumento (+6,06%).
NOVITÀ Il risultato che vedi dipende dai dati che siamo riusciti ad estrarre dall'annuncio: ottieni una stima più accuranta di questo immobile, inserendo dati più precisi.
N.B. L'Opinione di Caasa® è un servizio sperimentale realizzato tramite tecniche di Intelligenza Artificiale, fornito senza alcuna garanzia di correttezza e completezza. Leggi il disclaimer o segnalaci un problema.
IMMAGINI
IN SINTESI
PROPOSTO DA:
IMMOBILPOINT di Garbo Leonardo
DESCRIZIONE
da ristrutturare con giardino con termocondizionamento da ristrutturare con riscaldamento autonomo senza ascensore con cucina abitabile con cortile
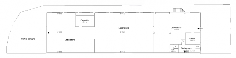
In zona centrale a Selvazzano Dentro proponiamo in vendita un capannone di circa 430 mq al piano terra con destinazione laboratorio, con un appartamento di 170 mq al primo piano. L'immobile si distingue per la sua versatilità grazie agli ampi spazi interni suddivisi tra laboratori (h=4,10 m e h=3,20 m), deposito (h=2,20 m) ed uffici funzionali (h=3,20 m), oltre a locali accessori come servizi igienici doppi con disimpegno dedicato. La presenza del cortile comune facilita l'accesso ai mezzi e il carico/scarico merci. Al piano superiore l'appartamento è composto da soggiorno luminoso, cucina abitabile, tre camere da letto comode, bagno finestrato e doppio poggiolo. Al piano superiore una comoda soffitta di oltre 30 mq. Soluzione ideale anche per chi desidera abbinare all'attività lavorativa una zona living privata oppure foresteria aziendale. L'assenza totale di spese condominiali rappresenta un ulteriore vantaggio economico. La posizione garantisce ottima visibilità commerciale nonché collegamenti rapidi verso le principali arterie stradali della zona padovana. Questa proposta è perfetta sia per aziende in crescita che cercano nuovi spazi produttivi sia per investitori alla ricerca di immobili polifunzionali dal grande potenziale. Contatta subito la nostra agenzia per ricevere ulteriori informazioni in ufficio. Rif G047


