Valutazione immobiliare indipendente, accurata e gratuita

Appartamento in vendita a San Giorgio delle Pertiche (cod.64eb2418)

Caasa non ha sufficienti informazioni per commentare l'appartamento a San Giorgio delle Pertiche - 64eb2418.

Analisi immobiliare
I dati in posseso di Caasa per quest'immobile sono insufficienti, inaffidabili o contraddittori per proporre un'analisi attendibile.
Mercato immobiliare a San Giorgio delle Pertiche
Per quanto riguarda più in generale il comune di San Giorgio delle Pertiche, sono presenti al momento più di cento annunci per appartamenti in vendita (meno del 5% dell'intera provincia) e il maggior numero di annunci per questa tipologia sono relativi alla zona di Arsego.

Per quanto riguarda la dinamica dei prezzi, negli ultimi 6 mesi i prezzi medi in tutto il comune per appartamenti in vendita sono in forte aumento (+23,88%).

NOVITÀ Il risultato che vedi dipende dai dati che siamo riusciti ad estrarre dall'annuncio: ottieni una stima più accuranta di questo immobile, inserendo dati più precisi.

N.B. L'Opinione di Caasa® è un servizio sperimentale realizzato tramite tecniche di Intelligenza Artificiale, fornito senza alcuna garanzia di correttezza e completezza. Leggi il disclaimer o segnalaci un problema.

IMMAGINI

IN SINTESI

Prezzo:
nd
Superficie:
n.d. m²
Piano:
terra
Bagni:
2
Classe energetica:
n.d.
Città:
San Giorgio delle Pertiche (PD)
Zona OMI:
R1 (ZONA RURALE)
Indirizzo:
Pubblicato:
mer 17 settembre 2025

PROPOSTO DA:

STUDIO CANOVA immobili & crediti

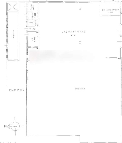
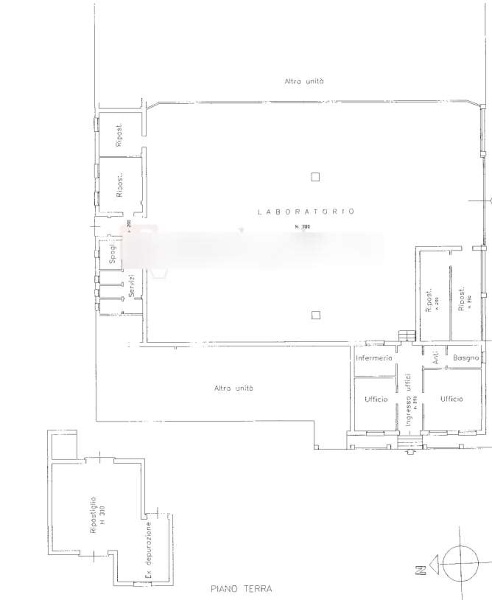
DESCRIZIONE

con cantina in asta giudiziaria

NUOVA PROPOSTA IMMOBILE DISPONIBILE Complesso produttivo artigianale/industriale situato a San Giorgio delle Pertiche (PD), in Via Del Santo. La proprietà è composta da due capannoni suddivisi in tre unità, adibite a lavorazione, locali tecnici, serv […]

  • yescasa.it