Valutazione immobiliare indipendente, accurata e gratuita
Casa indipendente in vendita a Rubano in zona Sarmeola a 148.000 € (cod.6575e654)
Caasa non ha sufficienti informazioni per commentare la casa indipendente a Rubano in zona Sarmeola - 6575e654.
Analisi immobiliare
I dati in posseso di Caasa per quest'immobile sono insufficienti, inaffidabili o contraddittori per proporre un'analisi attendibile.
Mercato immobiliare a Rubano
Per quanto riguarda più in generale la città di Rubano, sono presenti al momento più di cento annunci per
case indipendenti in vendita (meno del 5% dell'intera provincia)
e il maggior numero di annunci per questa tipologia sono relativi proprio alla zona di Sarmeola.
La richiesta media nella zona dove sorge la casa indipendente (Sarmeola) è pari a
1.710 €/m² che la rende la più economica della città .
Per quanto riguarda la dinamica dei prezzi, negli ultimi 6 mesi i prezzi medi in tutta la città per case indipendenti in vendita sono
in forte calo (-10,71%).
NOVITÀ Il risultato che vedi dipende dai dati che siamo riusciti ad estrarre dall'annuncio: ottieni una stima più accuranta di questo immobile, inserendo dati più precisi.
N.B. L'Opinione di Caasa® è un servizio sperimentale realizzato tramite tecniche di Intelligenza Artificiale, fornito senza alcuna garanzia di correttezza e completezza. Leggi il disclaimer o segnalaci un problema.
IMMAGINI
IN SINTESI
PROPOSTO DA:
SOLUZIONE CASA S.A.S. DI FAVARO MORENO, FABRIZIO CAPUTO & C.
DESCRIZIONE
da ristrutturare con termocondizionamento con giardino con cantina con riscaldamento autonomo da ristrutturare senza ascensore
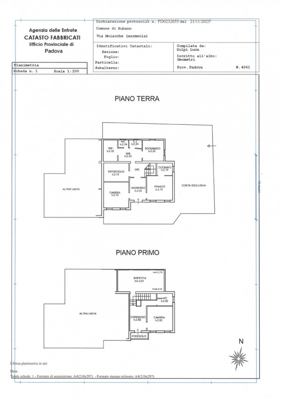
In una delle zone più tranquille e ricercate di Sarmeola, nel comune di Rubano, proponiamo in vendita porzione indipendente di bifamiliare da ristrutturare. L'immobile si sviluppa su due livelli per un totale di circa 120 mq calpestabili abitativi oltre a ulteriori 27mq dedicati ai vani accessori. La soluzione gode già del frazionamento effettuato e garantisce massima privacy grazie all'assenza totale di promiscuità tra le unità. Al piano terra troviamo un ampio ingresso luminoso che conduce ad un soggiorno accogliente, cucina separata abitabile (20 mq), ripostiglio pratico e zona servizio completa di w.c., locale sgombero ed altri spazi funzionali. Una splendida scala in legno porta al primo piano dove sono presenti una camera matrimoniale spaziosa, bagno finestrato e la possibilità concreta - grazie alle generose altezze (minimo 2,70m) - di realizzare una seconda grande camera attualmente identificata come sottotetto. La proprietà dispone inoltre sia dell'accesso carraio che pedonale completamente indipendenti; il giardino esclusivo recintato misura circa 170 mq: ideale per chi desidera vivere momenti all'aperto o creare uno spazio verde personalizzato. Gli interventi previsti nella ristrutturazione riguardano impiantistica termica (tubazioni/allacciamenti), elettrica/idraulica, rifacimento dei bagni, infissi nuovi nonché i cancelli d'ingresso. L'immobile rappresenta la scelta perfetta per famiglie o coppie alla ricerca della tranquillità senza rinunciare alla comodità dei servizi principali facilmente raggiungibili a piedi o in bicicletta. Possibilità anche d'acquisto della porzione adiacente: soluzione ottimale per due nuclei familiari vicini ma autonomi! Affidandoti alla nostra Agenzia verrai seguito passo dopo passo dalla valutazione della tua attuale residenza fino all'acquisto definitivo; mettiamo sempre le tue esigenze al centro offrendo consulenze gratuite da parte dei nostri esperti creditizi e tecnici edilizi così da rendere ogni fase semplice e serena. Non lasciarti sfuggire questa opportunit[…]





